User manual

Generac
®
Power Systems, Inc. 49
Appendix 4 — Exploded Views and Parts Lists
QUIETPACT™ 75D Recreational Vehicle Generator
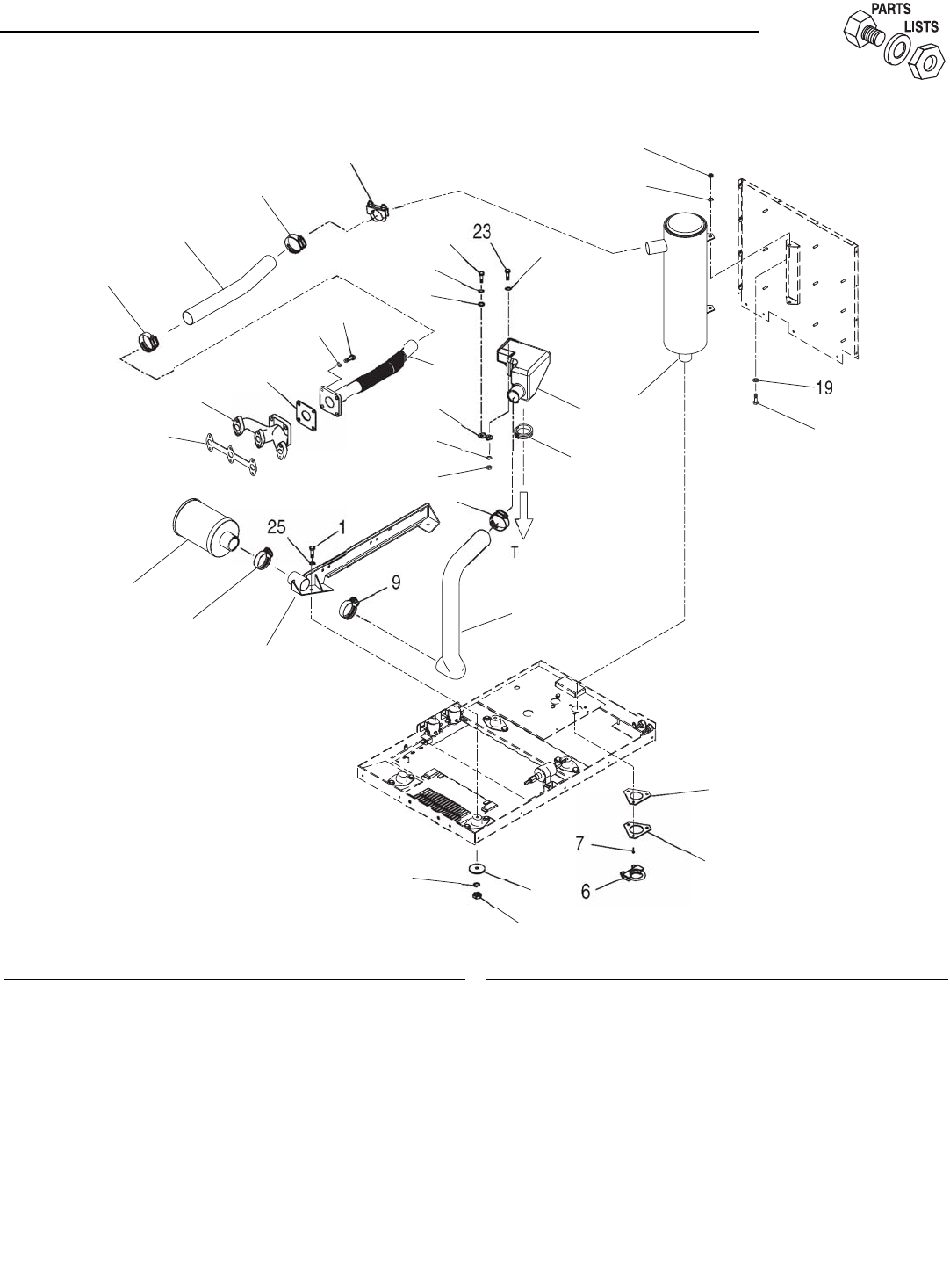
Intake and Exhaust System – Drawing No. 0D2362-C
ITEM PART NO. QTY. DESCRIPTION
1 075674 1 EXHAUST GASKET
2 0C4879 1 CHAMBER AIR INTAKE
3 0C4880 1 AIR FILTER
4 0C5493 1 HOSE, AIR INLET
5 0C4727 1 MUFFLER WELDMENT
6 025145 2 U BOLT & SADDLE 1.25
7 0C7645 1 RAIL, ENGINE LH, WELDMENT
8 0C5022 1 INSULATION, EXHAUST
9 035685 3 HOSE CLAMP #28
10 0C4878 1 OUTLET, EXHAUST FLEX
11 0C6243 1 GASKET, EXHAUST OUTLET
12 0C6244 1 PLATE, EXHAUST OUTLET
13 051730 2 HHCS M8-1.25 X 60
14 071956 2 WASHER, VIBRATION ISOLATOR
15 022129 10 WASHER, SPLIT LK -M8
ITEM PART NO. QTY. DESCRIPTION
16 045771 5 NUT, HEX M8-1.25
17 058443 3 CRIMPTITE, ¼"-20 X 5/8"
18 0C5105 1 BRACKET, SUPPORT
19 022145 4 WASHER, FLAT - M8
20 039253 2 HHCS M8-1.25 X 20
21 043107 4 HHCS M8-1.25 X 25
22 035586 2 HOSE CLAMP #20
23 042909 1 HHCS M8-1.25 X 30
24 042907 1 HHCS M8-1.25 X 16
25 022145 2 FLATWASHER, 5/16"
26 0709390357 1 MANIFOLD GASKET
27 075673 1 HORIZONTAL EXHAUST MANIFOLD
28 0E3692 1 GROMMET 1-3/4" X 1/8" X 2"
29 0E4491 1 WASHER FLAT 0.336"ID X 0.876"OD
22
9
3
22
27
2
6
8
7
15
16
14
17
12
11
6
3
1
5
1
21
1
8
1
6
1
5
9
24
1
5
1
9
1
0
1
6
O
EN
G
INE AIR INTAK
E
4
2
8
2
2
9
5
1
5
2
0










