User Guide

12
Service Manual VMH SerieS Heat Controller, Inc.
11
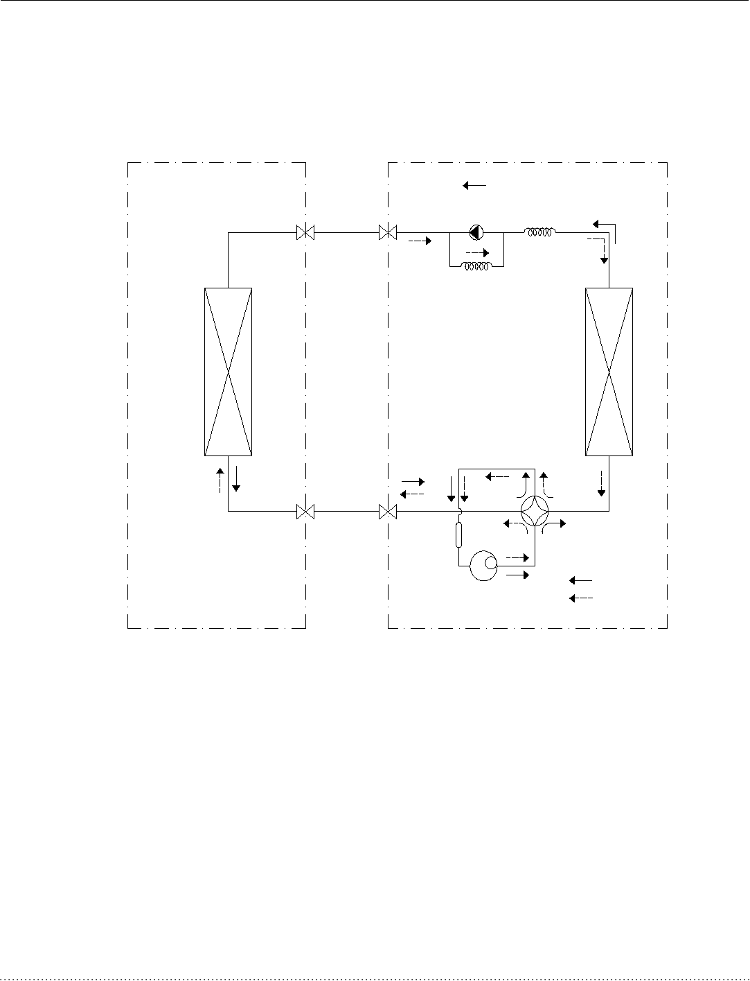
4. Refrigerant Cycle Diagram:
INDOOR OUTDOOR
LIQUID SIDE
GAS SIDE
HEAT
EXCHANGE
(EVAPORATOR)
HEAT
EXCHANGE
(CONDENSER)
COMPRESSOR
2-WAY VALVE
3-WAY VALVE
CHECK VALVE
(Heating Model only)
CAPILIARY TUBE
REVERSING VALVE
(Heating Model only)
COOLING
HEATING
ACCUMULATOR