Automobile Parts User Manual
Table Of Contents
- Application
- Features
- Specifications
- Specifications: M7215
- Specifications: W7212A Logic Module
- Installation: M7215, M7415, M8405
- Wiring: M7215, M7415, M8405
- T6031H Thermostat
- Operation and Checkout
- Settings and Adjustments
- Sequence of Operation
- Operation: W7212
- Settings and Adjustments: W7212
- Checkout and Troubleshooting
- Checkout and Troubleshooting: W7212

SOLID STATE ECONOMIZER SYSTEM
7 63-2484—2
IMPORTANT
All inputs and outputs must be 24 Vac Class 2.
Ambient Ratings:
Temperature: -40°F to +149°F (-40°C to +65°C). Humidity: 5 to
95 percent RH (noncondensing).
Inputs:
Enthalpy (C7400)
Dry Bulb Temperature (C7650)
Discharge Air (C7046)
Mixed Air (C7150)
DCV Sensor (C7232): 0/2-10 Vdc control signal;
100K ohm input impedance.
Outputs:
Actuator Signal: 2-10 Vdc. Minimum Actuator Impedance: 1K
ohm.
Exhaust Fan: Contact closure.
24 Vac Out: 25 VA maximum.
Approvals:
Underwriters Laboratories Inc.: UL873 listed.
Flammability Rating: UL94-5VB.
Plenum Rated.
CE.
C-tick.
Accessories:
4074EJM Bag Assembly. Consists of: Checkout jumper, 620
ohm, 1.2K ohm, 5.6K ohm, and 6.8K ohm checkout resis-
tors.
C7046A Discharge Air Temperature Sensor. C7150B Mixed Air
Temperature Sensor.
C7232A,B Carbon Dioxide Sensors.
C7400 Solid State Enthalpy Sensor.
C7650 Dry Bulb Temperature Sensor.
S963B1128 Remote Potentiometer to provide remote control of
damper minimum position.
ST6008 Energy Management Timer for occupied/unoccupied
control.
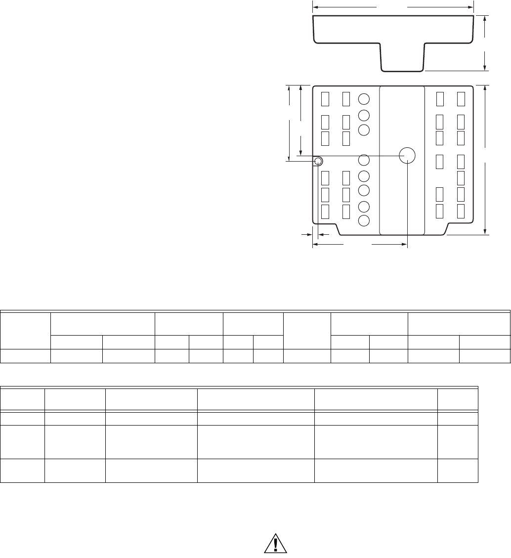
Fig. 7. Logic module dimensions in in. (mm).
INSTALLATION: M7215, M7415, M8405
When Installing this Product...
1. Read instructions carefully. Failure to follow them could
damage the product or cause a hazardous condition.
2. Check ratings and description given in the specifications
to make sure the product is suitable for your application.
3.
Installer must be a trained, experienced service technician.
4. After installation is complete, check out product opera-
tion as provided in these instructions.
CAUTION
Electrical Shock or Equipment Damage Hazard.
Can shock individuals or short equipment circuitry.
Disconnect power supply before installation.
4-3/8 (112)
1-5/8
(41)
4-1/8
(104)
1/8 (4)
2-5/8 (66)
M20578B
2-1/16
(53)
1-15/16
(49)
Table 2. T6031H Thermostat Specifications.
Model
Number
Control Range
Max Element
Temperature Differential
Type of
Mounting
Capillary Length Bulb Size
°F °C °F °C °F °C ft m in. mm
T6031H 0° to 95° -18° to +35° 150° 66° 3° 2° Back 2 0.6 3/8 x 3-1/2 10 x 89
Table 3. W7459A,C,D Specifications.
Model
For Use with
Actuator
Discharge Air
Temperature Input
Minimum Position
Potentiometer Adjustment
Terminals for Remote
Minimum Damper Position
Output
Relays
W7459A M7415 Thermistor Sensor Yes Yes 2 spdt
W7459C M8405 Spst control No. Minimum position
adjustment is built into
M8405 Actuator
No 2 spdt
W7212A M7215
MS7505
Thermistor sensor Yes Yes 2 spdt