User's Manual

Table Of Contents
11
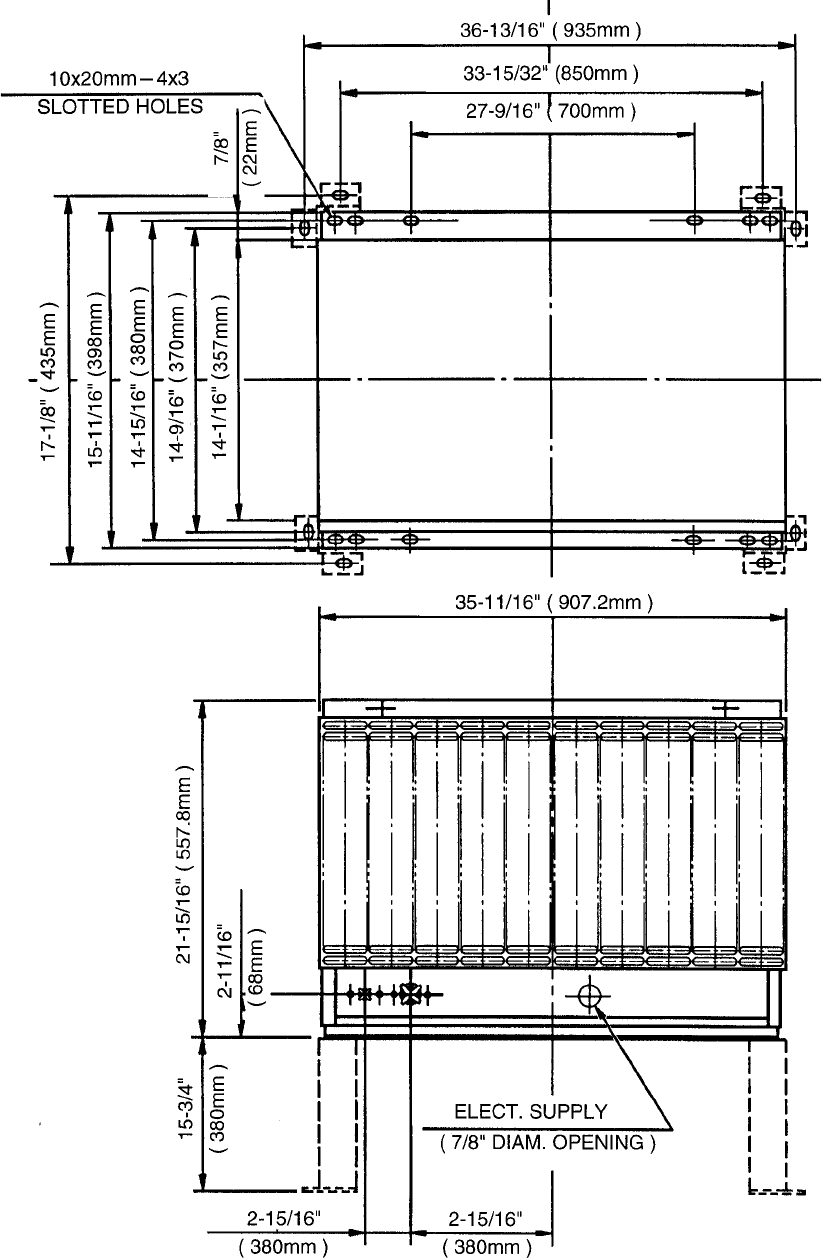
2. Condensing Unit
URC-12F