NonStop NS-Series Planning Guide (H06.04+)
Table Of Contents
- What’s New in This Manual
- About This Manual
- 1 System Hardware Overview
- 2 Installation Facility Guidelines
- 3 System Installation Specifications
- 4 Integrity NonStop NSSeries System Description
- NonStop System Primer
- NonStop Advanced Architecture
- NonStop Blade Complex
- Processor Element
- Duplex Processor
- Triplex Processor
- Processor Synchronization and Rendezvous
- Memory Reintegration
- Failure Recovery for Duplex Processor
- Failure Recovery for Triplex Processor
- ServerNet Fabric I/O
- System Architecture
- Modular Hardware
- NonStop S-Series I/O Hardware
- System Models
- Default Startup Characteristics
- Migration Considerations
- System Installation Document Packet
- 5 Modular System Hardware
- Modular Hardware Components
- Cabinets
- AC Power PDUs
- Modular Cabinet PDU Keepout Panel
- NonStop Blade Element
- Logical Synchronization Unit (LSU)
- LSU Indicator LEDs
- Processor Switch
- P-Switch Indicator LEDs
- Processor Numbering
- I/O Adapter Module (IOAM) Enclosure and I/O Adapters
- Fibre Channel Disk Module
- Tape Drive and Interface Hardware
- Maintenance Switch (Ethernet)
- Optional UPS and ERM
- System Console
- Enterprise Storage System
- Component Location and Identification
- NonStop S-Series I/O Enclosures
- Modular Hardware Components
- 6 System Configuration Guidelines
- Enclosure Locations in Cabinets
- Internal ServerNet Interconnect Cabling
- Cable Labeling
- Cable Management System
- Internal Interconnect Cables
- Dedicated Service LAN Cables
- Cable Length Restrictions
- Internal Cable Part Numbers
- NonStop Blade Elements to LSUs
- NonStop Blade Element to NonStop Blade Element
- LSUs to Processor Switches and Processor IDs
- Processor Switch ServerNet Connections
- Processor Switches to IOAM Enclosures
- FCSA to Fibre Channel Disk Modules
- FCSA to Tape Devices
- P-Switch to NonStop S-Series I/O Enclosure Cabling
- IOAM Enclosure and Disk Storage Considerations
- Fibre Channel Devices
- G4SAs to Networks
- Default Naming Conventions
- PDU Strapping Configurations
- 7 Example Configurations
- A Cables
- B Control, Configuration, and Maintenance Tools
- Support and Service Library
- System Console
- Maintenance Architecture
- Dedicated Service LAN
- IP Addresses
- Ethernet Cables
- SWAN Concentrator Restriction
- System-Up Dedicated Service LAN
- Dedicated Service LAN Links With One IOAM Enclosure
- Dedicated Service LAN Links to Two IOAM Enclosures
- Dedicated Service LAN Links With IOAM Enclosure and NonStop SSeries I/O Enclosure
- Dedicated Service LAN Links With NonStop S-Series I/O Enclosure
- Initial Configuration for a Dedicated Service LAN
- Operating Configurations for Dedicated Service LANs
- OSM
- System-Down OSM Low-Level Link
- AC Power Monitoring
- AC Power-Fail States
- C Guide to Integrity NonStop NSSeries Server Manuals
- Safety and Compliance
- Index

Example Configurations
HP Integrity NonStop NS-Series Planning Guide—529567-005
7-14
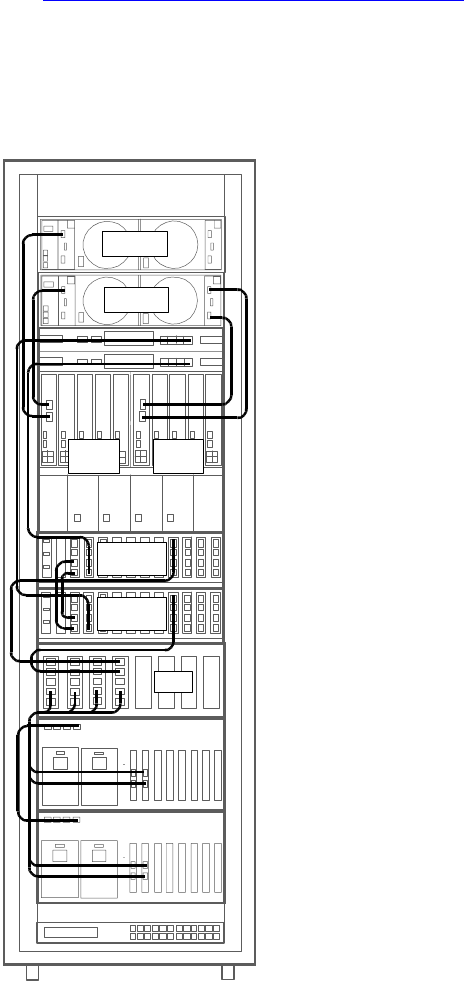
Example 4-Processor Duplex System Cabling
Example 4-Processor Duplex System Cabling
This illustration shows and example 4-processor duplex system in a single cabinet.
This simplified, conceptual representation shows the X and Y ServerNet cabling
between the NonStop Blade Element, LSU, p-switch, and IOAM enclosures. For clarity,
power and Ethernet cables are not shown. For cable-by-cable interconnect diagrams,
see Internal ServerNet Interconnect Cabling on page 6-3.
Cable management hardware that is part of each modular enclosure and also the rack
is not shown. Therefore, actual cable routing using the cable management hardware is
different from that shown. For detailed information on cable routing, refer to the
NonStop NS-Series Hardware Installation Manual.
This illustration also shows an example of the modular I/O hardware with simplified
representation of the X and Y ServerNet cabling between the IOAM enclosures and the
p-switches and the simplified cabling between the FCSAs and Fibre Channel disk
modules. The example Fibre Channel disk module configuration for the group 110
VST.703.vsd
FCDM
M1
FCDM
P1
IOAM
110.3
IOAM
110.2
NSBE 1A
NSBE 1B
LSU
X
P-Switch
Y
P-Switch










