ProLiant DL580 Generation 3 Server Maintenance and Service Guide

Table Of Contents
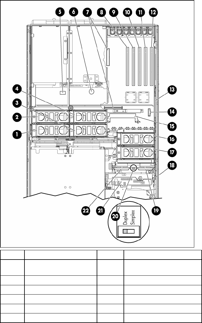
Server component identification 76
System board components
Item Description Item Description
1 Fan 1 12
PCI-X, non-hot-plug slot 7, 64-
bit/100-MHz
2 Fan 2 13 BBWC battery pack
3 Fan 3 14 Remote management connector
4 Fan 4 15 BBWC cache module socket
5 System maintenance switch 16 Fan 6
6 System battery 17 Fan 5