Disk Array FC60 User's Guide (A5635A)
Table Of Contents
- 1 Product Description
- 2 Array Planning
- 3 Installation
- 4 Managing the Disk Array
- 5 Troubleshooting
- 6 Removal and Replacement
- 7 Reference / Legal / Regulatory

106$SSO\LQJ3RZHUWRWKH'LVN$UUD\
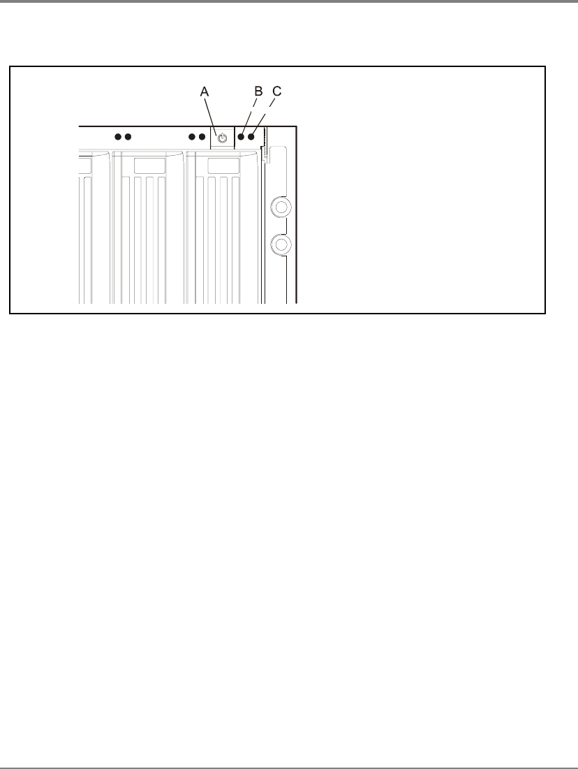
)LJXUH 'LVN(QFORVXUH3RZHU6ZLWFKDQG6\VWHP/('V
&KHFNWKH/('VRQWKHIURQWRIWKHGLVNHQFORVXUHVVHH)LJXUH7KH6\VWHP3RZHU
/('%LQ)LJXUHVKRXOGEHRQDQGWKH(QFORVXUH)DXOW/('&VKRXOGEHRII
,WLVQRUPDOIRUWKH(QFORVXUH)DXOW/('DPEHUWRJRRQPRPHQWDULO\ZKHQWKH
HQFORVXUHLVILUVWSRZHUHGRQ+RZHYHULIWKH(QFORVXUH)DXOW/('UHPDLQVRQLW
LQGLFDWHVWKDWDIDXOWKDVEHHQGHWHFWHG5HIHUWR7URXEOHVKRRWLQJRQSDJH IRU
DGGLWLRQDOLQIRUPDWLRQ
3RZHUXSWKHFRQWUROOHUHQFORVXUHXVLQJERWKSRZHUVZLWFKHVRQWKHEDFNRIWKH
HQFORVXUHVHH)LJXUH










