Disk Array FC60 User's Guide (A5635A)
Table Of Contents
- 1 Product Description
- 2 Array Planning
- 3 Installation
- 4 Managing the Disk Array
- 5 Troubleshooting
- 6 Removal and Replacement
- 7 Reference / Legal / Regulatory

&RQILJXUDWLRQ6ZLWFKHV 87
Installation
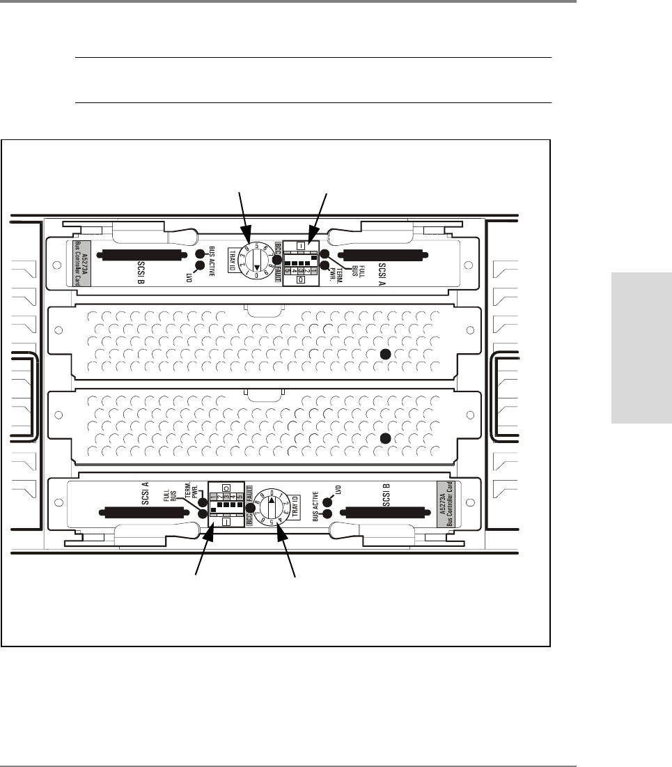
Note 1RWHWKDWRQH%&&LVLQYHUWHGZLWKUHVSHFWWRWKHRWKHU7KXVWKHRSHQDQG
FORVHGVHWWLQJVRQRQH%&&DUHLQYHUWHGDQGLQUHYHUVHRUGHUIURPWKHRWKHU
)LJXUH
'LVN(QFORVXUH&RQILJXUDWLRQ6ZLWFKHV
BA
7UD\,'
7UD\,'
&RQILJXUDWLRQ',3VZLWFK
&RQILJXUDWLRQ',3VZLWFK










