Reversing Drum Controllers Parts List

Replacement Parts
November 2003
Hubbell Industrial Controls • 4310 Cheyenne Drive, Archdale, NC 27262 • (336) 434-2800 • FAX (336) 434-2803
58-GT3
Reversing Drum
Controllers
Class 58
T3
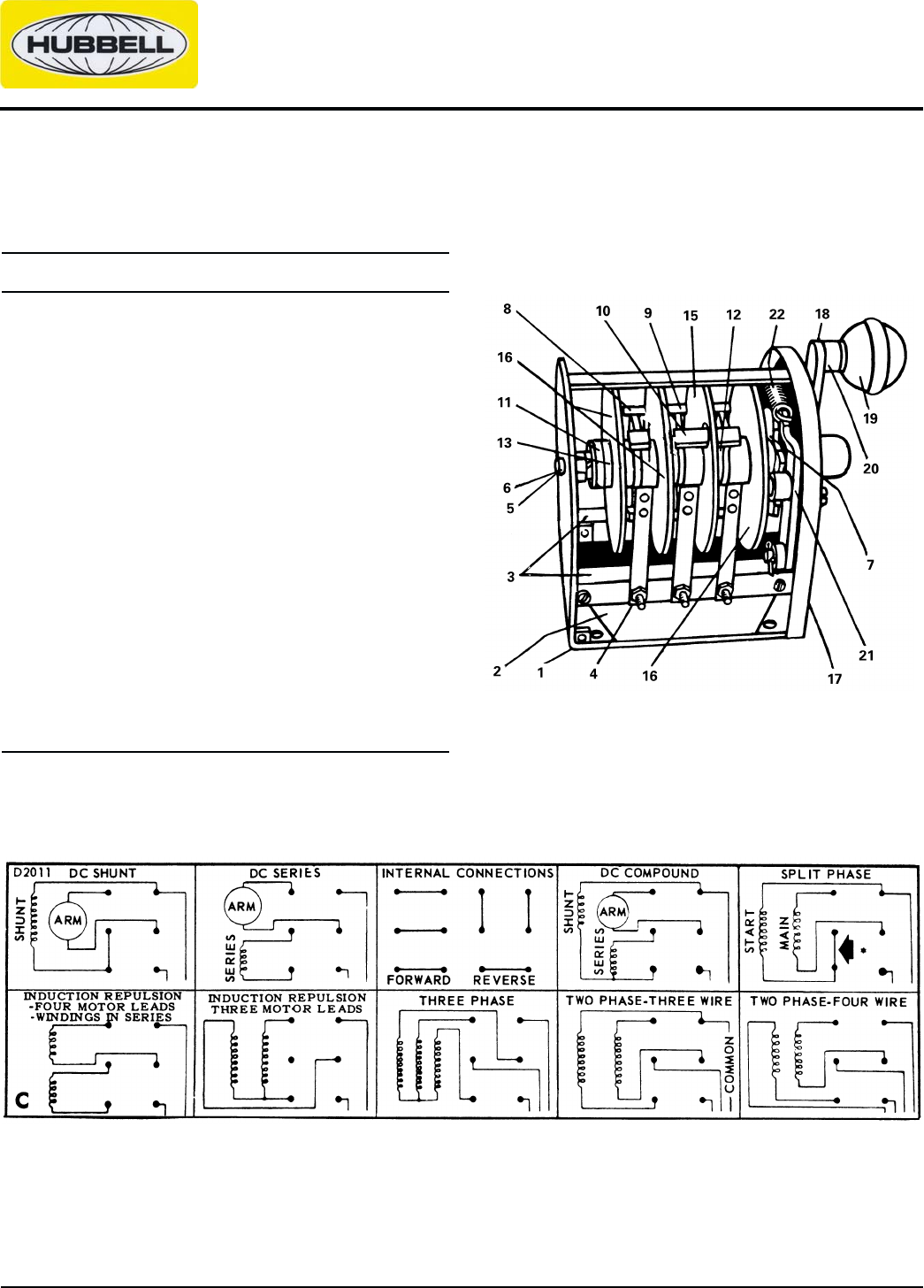
INDEX PART NO. PCS. NAME OF PART
REQD.
1D03887-001 1Frame assembly complete with
insulation
2D10445-001 1Frame insulation
3D0632-013 '2Fingerboards,(left orright hand)
4 '*D0925-004 6Fingers complete w/ coppertips
5D561640011Rotorassembly consisting of: cam,
shaft rotor contacts, inner and outer
tubing and arc shields
6D00103-038 1Shaft
7D09944-001 '1Cam
8 '*D01633-002 1Rotorcontact
9
'*D01633-004 1Rotorcontact
10 '*D01633-006 1Rotorcontact
11D35281-007 4Rotorcontact
12D01858-01 7 3Outertubing
13D01858-021 1Outertubing
14D01858-027 1Outertubing
15D00379-001 1Arc shield
16D00379-002 3Arc shields
17D08340-001 1Top assembly complete w/ bushing
18D17731-004 '1Lever
19D00114-001 1Red knob
20D06196-010 1Spacer
21D06227-001 1Index leverassembly
22 '*D09953-001 1Index spring
When ordering replacement parts, give style of switch and part number.
* Add Jumper for Split Phase applications.
When ordering replacement parts, give complete catalog number of switch and part number.
(For Engineering Reference Only - Rev. B)
* PK40 - Part Kit

