Instruction Manual

5-58
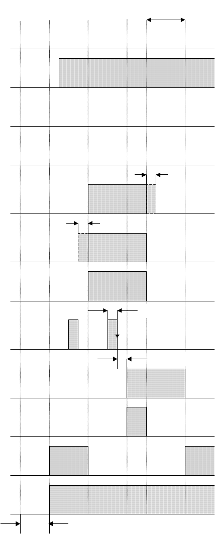
Mode select
input : X0
Safety output :
Y0,Y1,Y2,Y3
Monitor output for
X0 and X1 : Y4
Monitor output for
safety output :
Y12,Y13
Solenoid output :
Y17,Y20
Power ON
Off delay
time
Auto mode
Control start input
: X17
Safety output
ON
Mode select
input : X1
Safety input : X4
Monitor output for
X4 or X5 : Y6
RUN monitor :
Y16
Safety input : X2,X3
(X6...X13 are ON in this chart.)
Max. 6s
Safety input : X5
(Note)
Note: When the input time difference of the dual channel safety inputs is 0.5s or more, an input monitor error is detected.
Refer to the following "Logic functions" for details.
(Note)
0.1s...5s
Max. 0.1s
Initialization










