User Manual

Table Of Contents
WAFER-945GSE2 3.5" Motherboard
Page 5
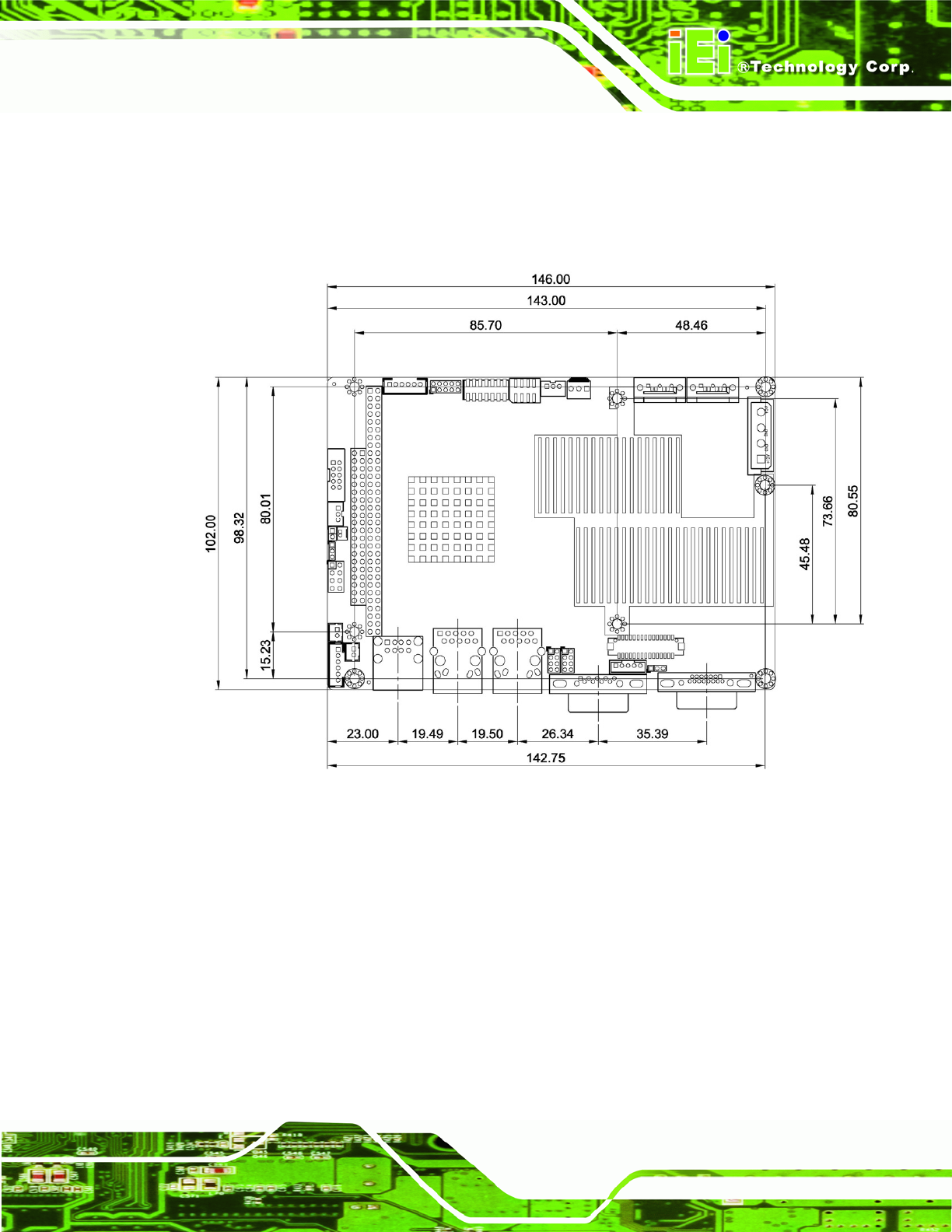
1.4 Dimensions
1.4.1 Board Dimensions
The dimensions of the board are shown below: