Guide
A
A
B
B
C
C
D
D
E
E
4 4
3 3
2 2
1 1
FWH sits in the
FWH_TSOP_Socket,
Not on the board
FWH SKT
FWH
A
31 59
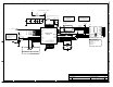
Intel 852GM CRB
A#
Title
Size Document Number Rev
of
Project:
IC
PCI_RST#_D
TP_FWH_ID3
TP_FWH_ID2
TP_FWH_ID1
TP_FWH_ID0
TP_FWH_RSVD2
TP_FWH_RSVD1
TP_FWH_RSVD5
TP_FWH_RSVD4
TP_FWH_RSVD3
FGPIO3
FGPIO1
FGPIO2
FGPIO0
FGPIO4
WP#
TBL#
TP_FWH_NC1
TP_FWH_NC2
TP_FWH_NC3
TP_FWH_NC4
TP_FWH_NC5
TP_FWH_NC6
TP_FWH_NC7
TP_FWH_NC8
LPC_AD0 19,32..34,37
LPC_AD2 19,32..34,37
LPC_AD3 19,32..34,37
LPC_AD1 19,32..34,37
FWH_TBL# 19,37
FWH_WP# 19,37
LPC_FRAME# 19,32..34,37
BUF_PCI_RST#18,22..24,26,32,34,37
FWH_INIT#18
CLK_FWHPCI6
+V3.3S5,6,8,9,11,15,16,18,20,21,23,26,33..36,38..40,42,44,48 +V3.3S_FWH
R8W3 100
R8W2 100
R8H5
0.01_1%
C8G3
10UF
U8H1
FWH
15
33
16
32
7
17
3818
37
31
30
39
40
2
26
11
27
12
29
28
36
35
34
19
20
21
22
23
24
25
9
10
1
3
4
5
6
8
13
14
FGPI3
RSVD1
FGPI2
RSVD2
FGPI4
FGPI1
FWH4FGPI0
INIT#
VCC1
GND1
VCCA
GNDA
IC
FWH1
VPP
FWH2
RST#
GND2
FWH3
RSVD3
RSVD4
RSVD5
WP#
TBL#
ID3
ID2
ID1
ID0
FWH0
CLK
VCC2
NC1
NC2
NC3
NC4
NC5
NC6
NC7
NC8
R8W5 100
C8W2
0.1UF
R8W1 100
R8W6 100
R8W7 100
C8W1
0.1UF
R8W4 100
R8W8 100
RP9B1B
10K
27










