Guidelines
Manuals
Brands
Intel Manuals
Other
Intel Xeon Processor 7040
41
42
43
44
45
46
47
48
49
50
Me
cha
nical
Dr
awin
g
s
44
Dual-C
ore
Intel
®
Xeon
®
Pro
cess
or 700
0 Se
quenc
e Th
erma
l /Mec
ha
nical G
uide
lines
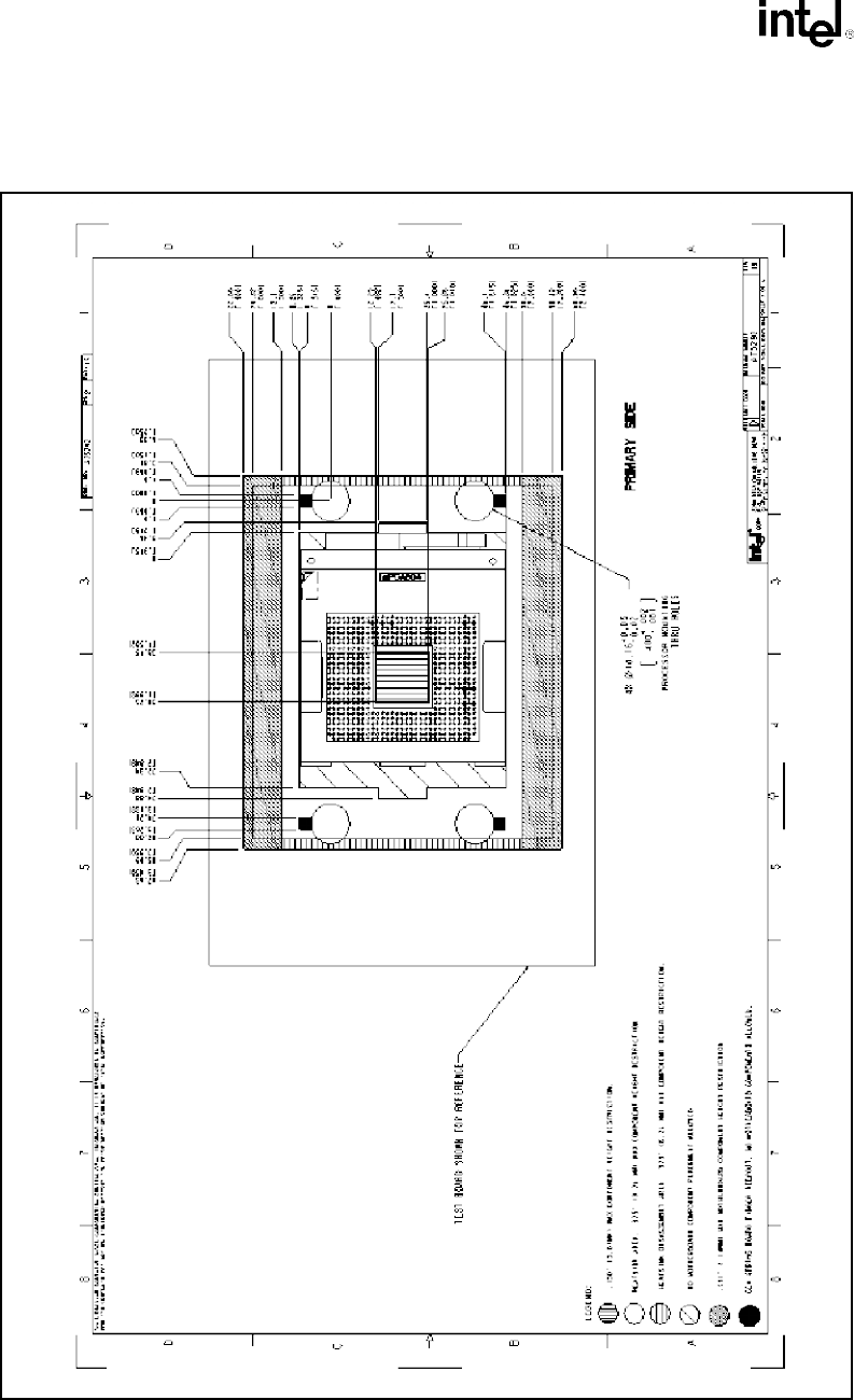
Fig
ure
A-
9. Ba
sebo
ard
Kee
pou
t Fo
ot
prin
t
D
efin
ition
an
d
Hei
gh
t Res
tr
icti
on
s
for E
na
bl
ing
Com
p
on
ents (Sh
ee
t 2
of 6)
1
...
...
42
43
44
45
46
...
...
56