Guidelines
Manuals
Brands
Intel Manuals
Other
Intel Xeon Processor 7130N
31
32
33
34
35
36
37
38
39
40
Me
cha
nical
Dr
awin
g
s
38
Dual-C
ore
Intel
®
Xeon
®
Pro
cess
or 700
0 Se
quenc
e Th
erma
l /Mec
ha
nical G
uide
lines
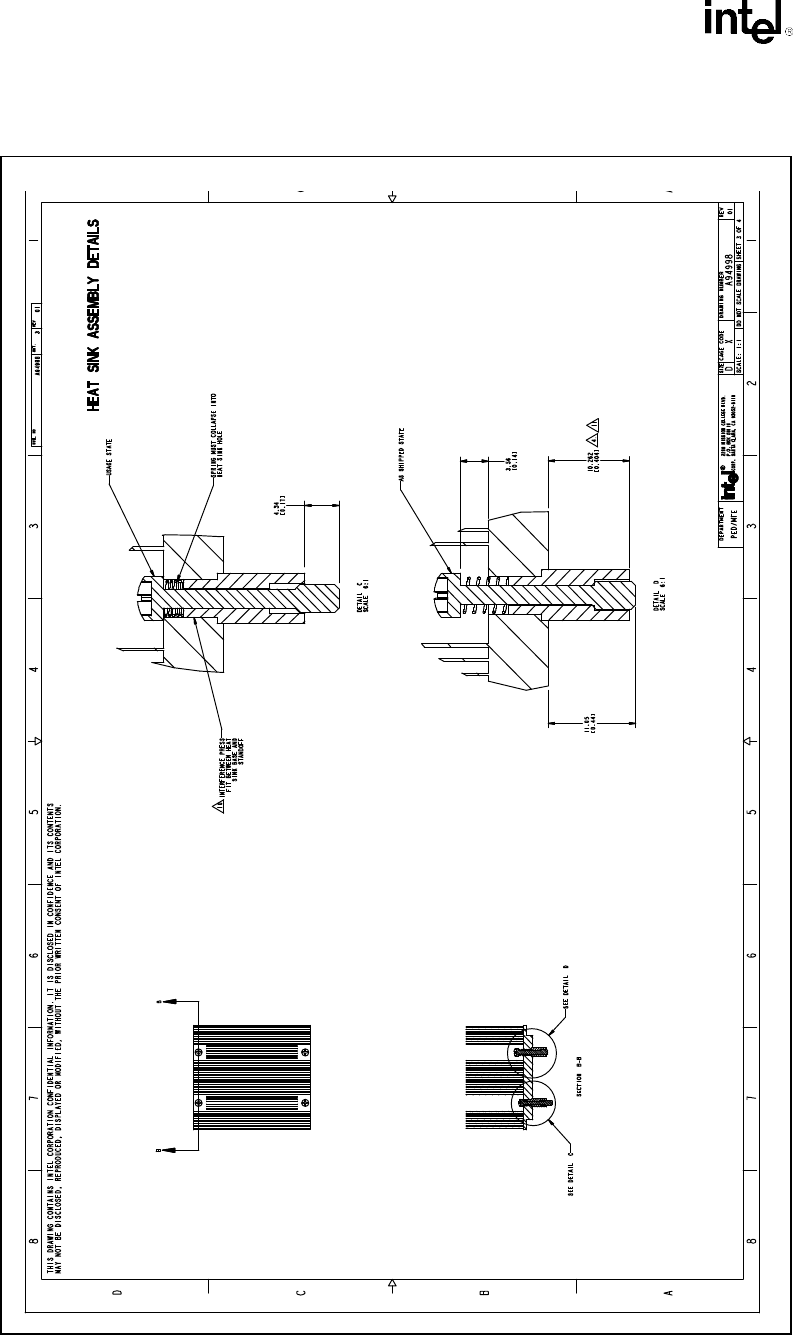
Fig
ure
A-
3. 2U
C
EK
Hea
tsink
(Shee
t 3 of
4)
1
...
...
36
37
38
39
40
...
...
56