Guidelines
Manuals
Brands
Intel Manuals
Other
Intel Xeon Processor 7140N
31
32
33
34
35
36
37
38
39
40
Dua
l-Cor
e Int
el
®
Xeon
®
Pro
cessor
700
0 Se
quenc
e Th
erma
l /Mecha
nic
al G
uide
lines
39
Me
cha
nical
Dr
awi
ng
s
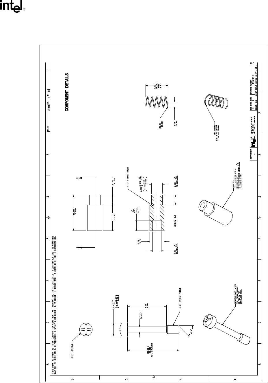
Fig
ure
A-
4. 2U
C
EK
H
eatsink
(Sh
ee
t 4
of
4)
1
...
...
37
38
39
40
41
...
...
56