Guidelines
Table Of Contents
- 1 Introduction
- 2 Packaging Technology
- 3 Thermal Specifications
- 4 Thermal Simulation
- 5 Thermal Metrology
- 6 Reference Thermal Solution
- A Thermal Solution Component Suppliers
- B Mechanical Drawings

Intel® 3210 and 3200 Chipset Thermal/Mechanical Design Guide 11
Packaging Technology
2 Packaging Technology
The Intel
®
3210 and 3200 Chipset consists of two individual components: the Memory
Controller Hub (MCH) and the Intel
®
I/O Controller (Intel
®
ICH9). The Intel
®
3210 and
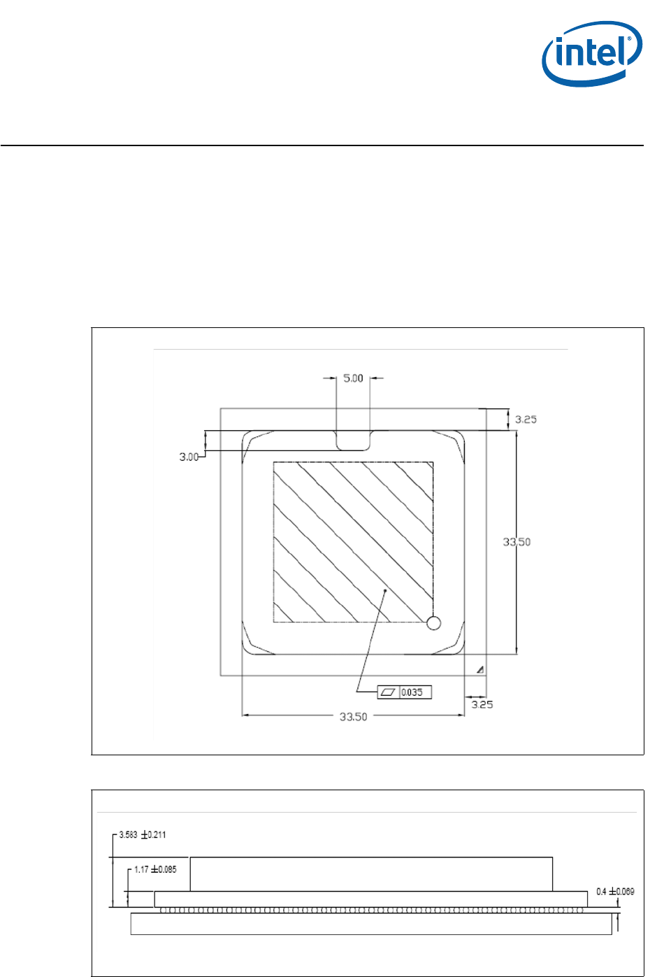
3200 Chipset MCH component uses a 40 mm [1.57 in] x 40 mm [1.57 in] Flip Chip Ball
Grid Array (FC-BGA) package with an integrated heat spreader (IHS) and 1300 solder
balls. A mechanical drawing of the package is shown in Figure 2-1. For information on
the Intel
®
ICH9 package, refer to the Intel
®
I/O Controller Hub9 (ICH9) Thermal
Design Guidelines.
Figure 2-1. MCH Package Dimensions (Top View)
Figure 2-2. MCH Package Height










