Guidelines
Table Of Contents
- 1 Introduction
- 2 Packaging Technology
- 3 Thermal Specifications
- 4 Thermal Simulation
- 5 Thermal Metrology
- 6 Reference Thermal Solution
- A Thermal Solution Component Suppliers
- B Mechanical Drawings

Intel® 3210 and 3200 Chipset Thermal/Mechanical Design Guide 55
Mechanical Drawings
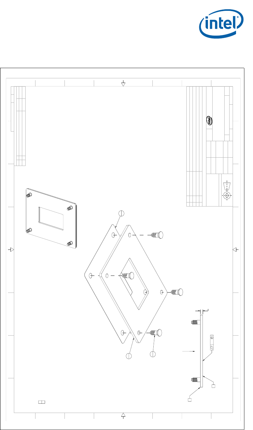
Figure B-10. Intel
®
3210 and 3200 Chipset Reference Thermal Solution - Backplate
Assembly
8 7 6 5 4 3 2
H
G
F
E
D
C
B
A
8 7 6 5 4 3 2 1
H
G
F
E
D
C
B
A
THIS DRAWING CONTAINS INTEL CORPORAT ION CONFIDENTIAL INFORMATION. IT IS DISCLOSED IN CONFIDENCE AND ITS CONT ENTS
MAY NOT BE DISCLOSED, REPRODUCED, DI SPLAYED OR MODIFIED, WITHOUT THE PRI OR WRITTEN CONSENT OF INTEL CORPORATION.
REVISION HISTORY
ZONE REV DESCRIPTION DATE APPROVED
- A INITIAL DV RELEASE 03/09/07 KJC
1 PRODUCTION RELEASE 06/20/07 KJC
D94244 1 1
DWG. NO SHT. REV
DEPARTMENT
R
2200 MISSION COLLEGE BLVD.
P.O. BOX 58119
SANTA CLARA, CA 95052-8119
PST
TITLE
BONE TRAIL,MCH,STIFFENER,PLATE
SIZE DRAWING NUMBER REV
A1 D94244 1
SCALE:
2
DO NOT SCALE DRAWING
SHEET
1
OF
1
SEE NOTESSEE NOTES
FINISHMATERIAL
03/12/07K.KOEPSELL
DATEAPPROVED BY
03/12/07R.AOKI
03/12/07A.VALPIANI
DATECHECKED BY
03/09/07K.CEURTER
DATEDRAWN BY
03/09/07K.CEURTER
DATEDESIGNED BY
UNLESS OTHERWISE SPECIFIED
INTERPRET DIMENSIONS AND TOLERANCES
IN ACCORDANCE WITH ASME Y14.5M-1994
DIMENSIONS ARE IN MILLIMETERS
ALL UNTOLERANCED LINEAR
DIMENSIONS ± 0.1
ANGLES ±1
THIRD ANGLE PROJECTION
PARTS LIST
DESCRIPTIONPART NUMBERITEM NOQTY
ASSY,STIFFENER,BD,BONE TRAILD94244-001TOP
BONE TRAIL, MCH, STIFFENER, PLATED92620-00111
BONE TRAIL,STUD,SELF-CLINCHING, DOG POINTD92622-00124
BONE TRAIL,INSULATOR,BACK PLATED92624-00131
0.13
()2.127
NOTES:
1. DIMENSIONS ARE IN MILLIMETERS
2. REMOVE OILS-GREASE FROM PLATE PRIOR TO INSULATOR (3) INSTALLATION.
3 INSTALL STUDS FLUSH TO THIS SURFACE +0.1 / -0.25 MM
4 INSULATOR WILL OVERHANG EDGE UPON PLACEMENT AND IS ACCEPTABLE
PLATE PUNCH/BURR DIRECTION
3
4
1
1
2
4
3
1










