Guidelines
Table Of Contents
- 1 Introduction
- 2 Packaging Technology
- 3 Thermal Specifications
- 4 Thermal Simulation
- 5 Thermal Metrology
- 6 Reference Thermal Solution
- A Thermal Solution Component Suppliers
- B Mechanical Drawings

Mechanical Drawings
54 Intel® 3210 and 3200 Chipset Thermal/Mechanical Design Guide
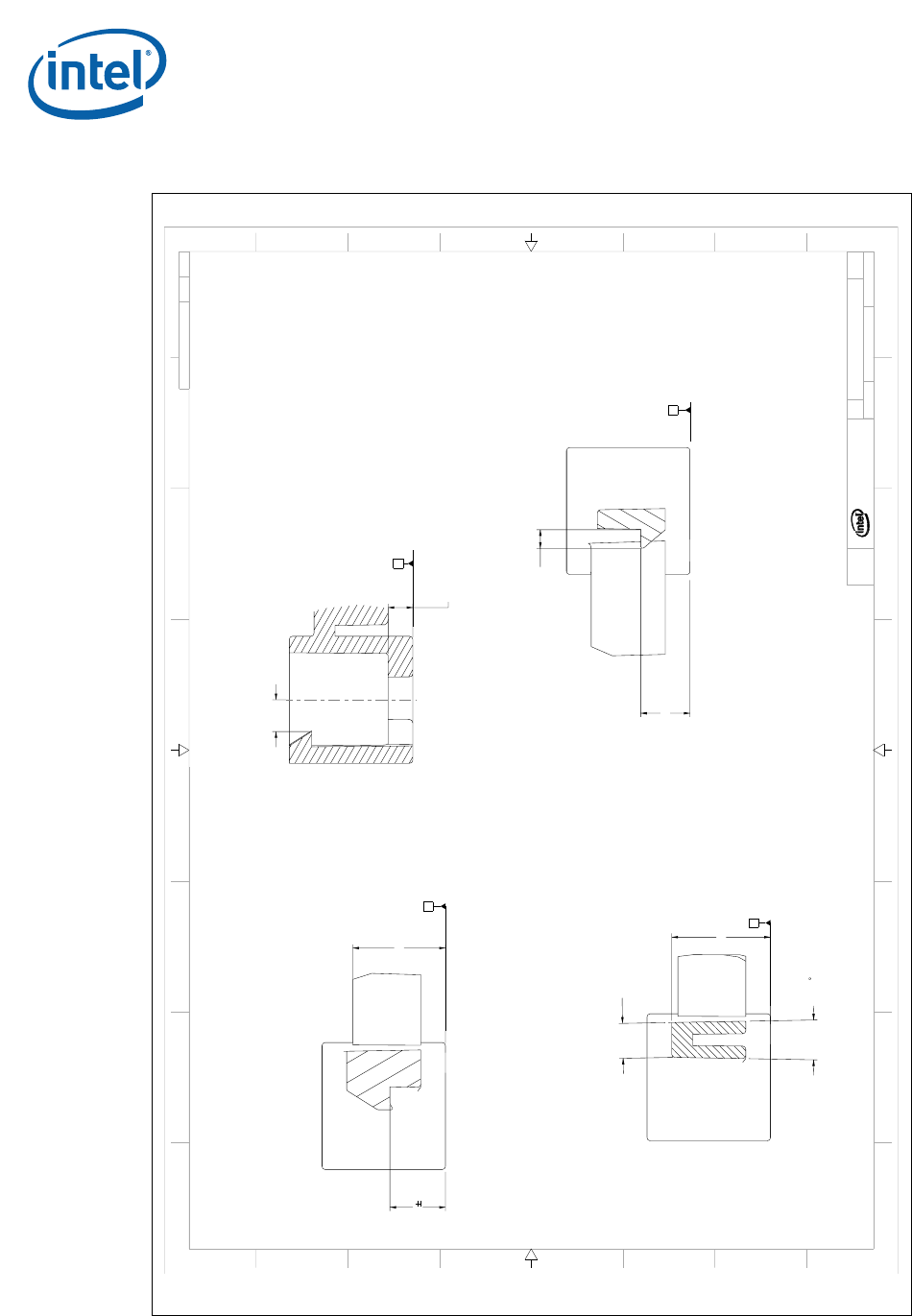
Figure B-9. Intel
®
3210 and 3200 Chipset Reference Thermal Solution - Bracket (2 of 2)
H
G
F
E
D
C
B
A
H
G
F
E
D
C
B
A
8 7 6 5 4 3 2
8 7 6 5 4 3 2 1
THIS DRAWING CONTAINS INTEL CORPORAT ION CONFIDENTIAL INFORMATION. IT IS DISCLOSED IN CONFIDENCE AND ITS CONT ENTS
MAY NOT BE DISCLOSED, REPRODUCED, DI SPLAYED OR MODIFIED, WITHOUT THE PRI OR WRITTEN CONSENT OF INTEL CORPORATION.
E11663 2 1
DWG. NO SHT. REV
DEPARTMENT
R
2200 MISSION COLLEGE BLVD.
P.O. BOX 58119
SANTA CLARA, CA 95052-8119
PST
SIZE DRAWING NUMBER REV
A1 E11663 1
SCALE:
3
DO NOT SCALE DRAWING
SHEET
2
OF
2
2X 4.5 0.07
8
2
TYP 2.8
REV B
TYP ( )
2
7.5
2.55
4
1.5
A
A
A
A
SECTION I-I
SCALE 10
SECTION II-II
SCALE 10
SECTION III-III
SCALE 10
SECTION IV-IV
SCALE 10










