Guidelines

Intel® 3210 and 3200 Chipset Thermal/Mechanical Design Guide 53
Mechanical Drawings
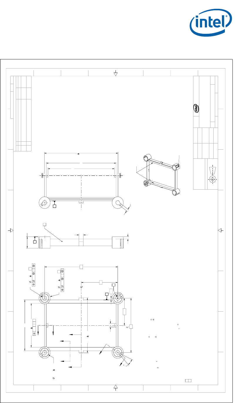
Figure B-8. Intel
®
3210 and 3200 Chipset Reference Thermal Solution - Bracket (1 of 2)
8 7 6 5 4 3 2
H
G
F
E
D
C
B
A
8 7 6 5 4 3 2 1
H
G
F
E
D
C
B
A
THIS DRAWING CONTAINS INTEL CORPORAT ION CONFIDENTIAL INFORMATION. IT IS DISCLOSED IN CONFIDENCE AND ITS CONT ENTS
MAY NOT BE DISCLOSED, REPRODUCED, DI SPLAYED OR MODIFIED, WITHOUT THE PRI OR WRITTEN CONSENT OF INTEL CORPORATION.
REVISION HISTORY
ZONE REV DESCRIPTION DATE APPROVED
- A INITIAL DV RELEASE 03/09/07 KJC
S1-C3
S2-B7
B
REMOVED ROUNDS
CHANGED DRAFT ANGLE FROM 0.5 TO 1 DEG
03/23/07 KJC
1
PART NUMBER CHANGED FROM D92625-001;
REMOVED Z-STOP FROM SEC III; INCREASED
NUT LATCH SIZE IN SEC II
05/16/07 KJC
E11663 1 1
DWG. NO SHT. REV
DEPARTMENT
R
2200 MISSION COLLEGE BLVD.
P.O. BOX 58119
SANTA CLARA, CA 95052-8119
PST
TITLE
BONE TRAIL,FRAME,TOP
SIZE DRAWING NUMBER REV
A1 E11663 1
SCALE:
3
DO NOT SCALE DRAWING
SHEET
1
OF
2
SEE NOTESSEE NOTES
FINISHMATERIAL
03/12/07K.KOEPSELL
DATEAPPROVED BY
03/12/07R.AOKI
03/12/07A.VALPIANI
DATECHECKED BY
03/09/07K.CEURTER
DATEDRAWN BY
03/09/07K.CEURTER
DATEDESIGNED BY
UNLESS OTHERWISE SPECIFIED
INTERPRET DIMENSIONS AND TOLERANCES
IN ACCORDANCE WITH ASME Y14.5M-1994
DIMENSIONS ARE IN MILLIMETERS
ALL UNTOLERANCED LINEAR
DIMENSIONS ± 0.1
ANGLES ±0.5
THIRD ANGLE PROJECTION
I
I
II
II
III
III
IV
IV
60
4X 7.438 0.12
47.6 0.1
23.5
33
2X 3
4X 10
44
1.5
TYP 2
4X 1.84
63
66.4 0.018
2X 4
22.2
0.15 A H
4X
610.2 0.12
0.15 A H
4X
63.7 0.1
66
47
0.1 A H C
38
0.1
C
C
A
NOTES:
1. THIS DRAWING TO BE USED IN CONJUNCTION WITH SUPPLIED 3D DATABASE FILE. ALL DIMENSIONS AND TOLERANCES ON THIS DRAWING TAKE
PRECEDENCE OVER SUPPLIED FILE AND ARE APPLICABLE AT PART FREE, UNCONSTRAINED STATE UNLESS INDICATED OTHERWISE.
2. TOLERANCES ON DIMENSIONED AND UNDIMENSIONED FEATURES UNLESS OTHERWISE SPECIFIED:
DIMENSIONS ARE IN MILLIMETERS.
FOR FEATURE SIZES < 10MM: LINEAR .07
FOR FEATURE SIZES BETWEEN 10 AND 25 MM: LINEAR .08
FOR FEATURE SIZES BETWEEN 25 AND 50 MM: LINEAR .10
FOR FEATURE SIZES > 50MM: LINEAR .18
ANGLES: 0.5
3. MATERIAL:
A) TYPE: ENVIRONMENTALLY COMPLIANT THERMOPLASTIC OR
EQUIVALENT UPON INTEL APPROVAL (REF. GE LEXAN 500ECR-739)
B) CRITICAL MECHANICAL MATERIAL PROPERTIES
FOR EQUIVALENT MATERIAL SELECTION:
TENSILE YIELD STRENGTH (ASTM D638) > 57 MPa
FLEXURAL YIELD STREGTH (ASTM D638) > 99 MPa
TENSILE ELONGATION AT BREAK (ASTM D638) >= 46%
FLEXURAL MODULUS (ASTM D638) 3116 MPa 10%
SOFTENING TEMP (VICAT, RATE B): 154 C
C) COLOR: APPROXIMATING BLACK, (REF GE 739)
D) REGRIND: 25% PERMISSIBLE.
5 MARK PART WITH INTEL P/N, REVISION, CAVITY NUMBER AND DATE CODE APPROX WHERE SHOWN PER INTEL MARKING STANDARD 164997
6 CRITICAL TO FUNCTION DIMENSION
7. ALL DIMENSIONS SHOWN SHALL BE MEASURED FOR FAI
8. DEGATE: FLUSH TO 0.35 BELOW STRUCTURAL THICKNESS (GATE WELL OR GATE RECESS ACCEPTABLE)
9. FLASH: 0.15 MAX.
10. SINK: 0.25 MAX.
11. EJECTOR MARKS: FLUSH TO -0.25
12. PARTING LINE MISMATCH NOT TO EXCEED 0.25.
13. EJECTION PIN BOSSES, GATING, AND TOOLING INSERTS REQUIRE INTEL'S APPROVAL PRIOR TO TOOL CONSTRUCTION.
ALL EJECTION PIN BOSSES AND GATE FEATURES SHOWN ARE FOR REFERENCE ONLY.
14. EDGES SHOWN AS SHARP R 0.1 MAX.
15. TOOLING REQUIRED TO MAKE THIS PART SHALL BE THE PROPERTY OF INTEL, AND SHALL BE PERMANENTLY MARKED
WITH INTEL'S NAME AND APPROPRIATE PART NUMBER.
16. ALL SECONDARY UNIT DIMENSIONS ARE FOR REFERENCE ONLY.
5
REV B
REMOVED ROUNDS
REV B
4X REM ROUNDS
H