User Manual
Table Of Contents
- Intel® Desktop Boards D815EEA2, D815EPEA2, D815EFV, and D815EPFV Product Guide
- Revision History / Disclaimer
- Contents
- 1 Desktop Board Features
- 2 Installing and Replacing Desktop Board Components
- Before You Begin
- Installing and Removing Memory
- Installing and Removing the AGP Card Retention Mechanism
- Installing and Removing AGP and GPA Cards
- Installing the I/O Shield
- Installing the Desktop Board
- Installing a Processor
- Removing the Processor
- Installing a 1 GHz Processor Fan Heatsink
- Removing the 1 GHz Processor Fan Heatsink
- Replacing the Battery
- Setting the BIOS Configuration Jumper
- Clearing the Passwords
- 3 Updating the BIOS
- 4 Using the Setup Program
- 5 Technical Reference
- A Error Messages and Indicators
- B Regulatory Compliance

Intel Desktop Boards D815EEA2, D815EPEA2, D815EFV, and D815EPFV Product Guide
34
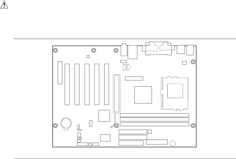
Installing the Desktop Board
Refer to your chassis manual for instructions on installing the desktop board. Seven screws for the
D815EEA2 and D815EPEA2 boards and six screws for the D815EFV and D815EPFV boards
secure the desktop board to the chassis. Figure 11 and Figure 12 respectively show the locations of
the mounting screw holes.
✏
NOTES
You will need a Phillips (#2 bit) screwdriver.
Refer to Appendix B for regulatory requirements and installation instructions and precautions.
CAUTION
Only qualified technical personnel should attempt this procedure. Disconnect the computer from
its power source before performing the procedures described here. Failure to disconnect the
power before you open the computer can result in personal injury or equipment damage.
OM11625
Figure 11. Location of the Mounting Screw Holes for the D815EEA2
and D815EPEA2 Boards










