User Manual
Table Of Contents
- Intel® Desktop Boards D815EEA2, D815EPEA2, D815EFV, and D815EPFV Product Guide
- Revision History / Disclaimer
- Contents
- 1 Desktop Board Features
- 2 Installing and Replacing Desktop Board Components
- Before You Begin
- Installing and Removing Memory
- Installing and Removing the AGP Card Retention Mechanism
- Installing and Removing AGP and GPA Cards
- Installing the I/O Shield
- Installing the Desktop Board
- Installing a Processor
- Removing the Processor
- Installing a 1 GHz Processor Fan Heatsink
- Removing the 1 GHz Processor Fan Heatsink
- Replacing the Battery
- Setting the BIOS Configuration Jumper
- Clearing the Passwords
- 3 Updating the BIOS
- 4 Using the Setup Program
- 5 Technical Reference
- A Error Messages and Indicators
- B Regulatory Compliance

Technical Reference
83
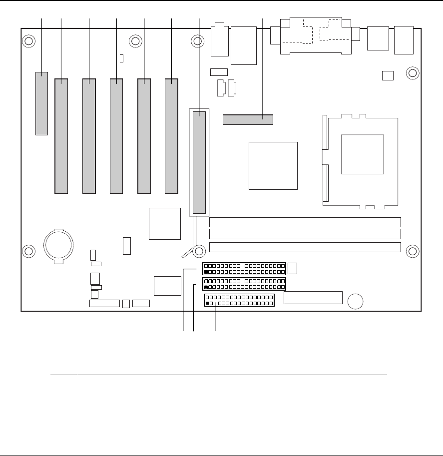
Add-In Board and Peripheral Interface Connectors for the D815EEA2 and
D815EPEA2 Boards
Figure 31 shows the add-in board and peripheral interface connectors.
OM11641
KJ
CB F G HE
1
2
33
34
1
2
40
39
1
2
40
39
I
A D
Item Description Item Description
A CNR (optional) G AGP
B PCI slot 5 H DVO (D815EEA2U only)
C PCI slot 4 I Diskette drive
D PCI slot 3 J Primary IDE
E PCI slot 2 K Secondary IDE
F PCI slot 1
Figure 31. Add-in Board and Peripheral Interface Connectors for the D815EEA2
and D815EPEA2 Boards










