Intel Desktop Board DG965SS Technical Product Specification
Table Of Contents
- Intel® Desktop Board DG965SS Technical Product Specification
- Revision History / Disclaimer
- Preface
- Contents
- 1 Product Description
- 2 Technical Reference
- 3 Overview of BIOS Features
- 4 Error Messages and Beep Codes
- 5 Regulatory Compliance and Battery Disposal Information

Technical Reference
61
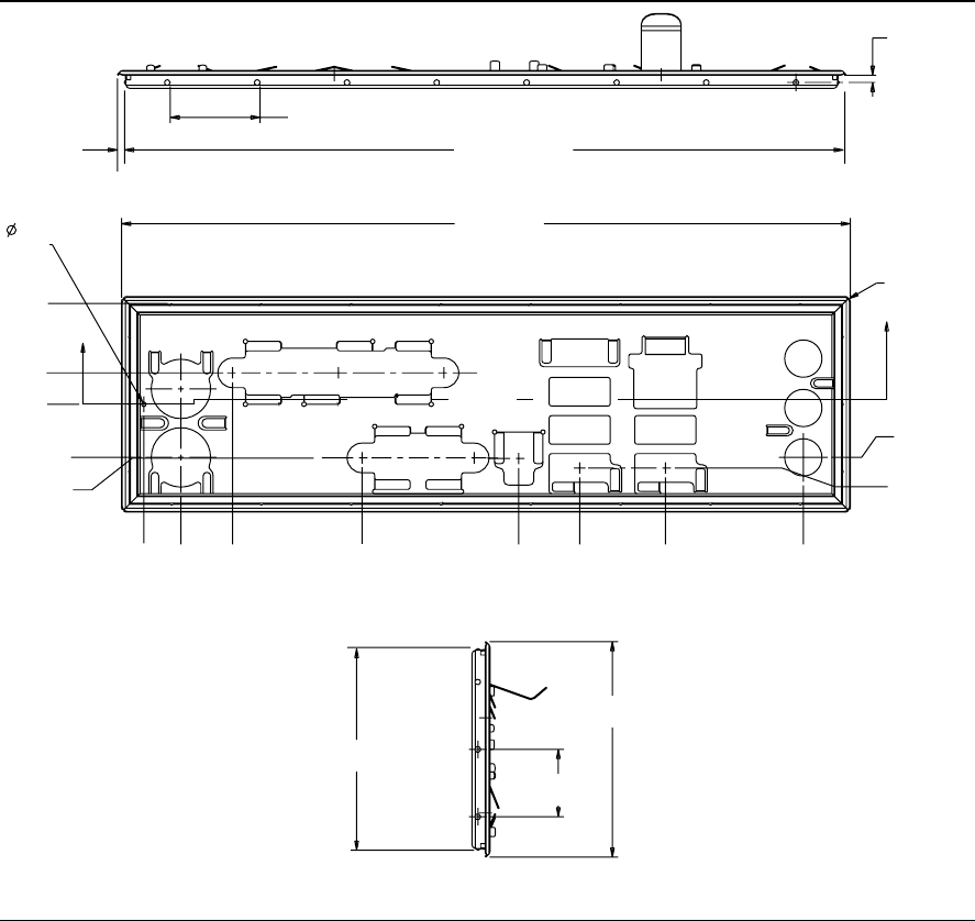
2.9.2 I/O Shield
The back panel I/O shield for the board must meet specific dimension and material
requirements. Systems based on this board need the back panel I/O shield to pass
certification testing.
Figure 22 shows the I/O shield. Dimensions are given in inches
[millimeters]. The figure indicates the position of each cutout. Additional design
considerations for I/O shields relative to chassis requirements are described in the ATX
specification.
NOTE
The I/O shield drawing is for reference only.
[44.9 – 0.12]
1.768 – 0.005
[15 – 0.25]
0.591 – 0.010
1.890
[48]
0.465
[11.81]
0.00
[0.00]
0.276
[7.01]
0.884
[22.45]
0.00
[0.00]
0.326
[8.27]
0.780
[19.81]
3.288
[83.52]
3.822
[97.08]
4.573
[116.15]
5.783
[146.88]
A
0.465
[11.81]
A
0.558
[14.17]
8X R0.5 MIN
[20 – 0.254]
0.787 – 0.010 TYP
[159.2 – 0.12]
6.268 – 0.005
[1.6 – 0.12]
0.063 – 0.005
[162.3]
6.390 REF
[1.55]
0.061 REF
0.039
[1]
OM18446
1.927
[48.95]
0.474
[12.04]
Figure 22. I/O Shield Dimensions










