Guidelines
Manuals
Brands
Intel Manuals
Other
Intel Xeon Processor E7430
41
42
43
44
45
46
47
48
49
50
Dua
l-Cor
e Int
el
®
Xeon
®
Pro
cessor
700
0 Se
quenc
e Th
erma
l /Mecha
nic
al G
uide
lines
41
Me
cha
nical
Dr
awi
ng
s
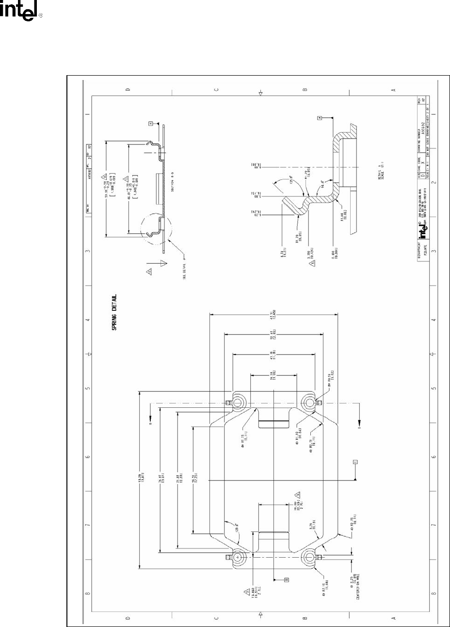
Fig
ure
A-
6. CE
K
Sp
ring
(Sh
eet
2 o
f 3)
1
...
...
39
40
41
42
43
...
...
56