Guidelines
Manuals
Brands
Intel Manuals
Other
Intel Xeon Processor E7540
41
42
43
44
45
46
47
48
49
50
Dua
l-Cor
e Int
el
®
Xeon
®
Pro
cessor
700
0 Se
quenc
e Th
erma
l /Mecha
nic
al G
uide
lines
47
Me
cha
nical
Dr
awi
ng
s
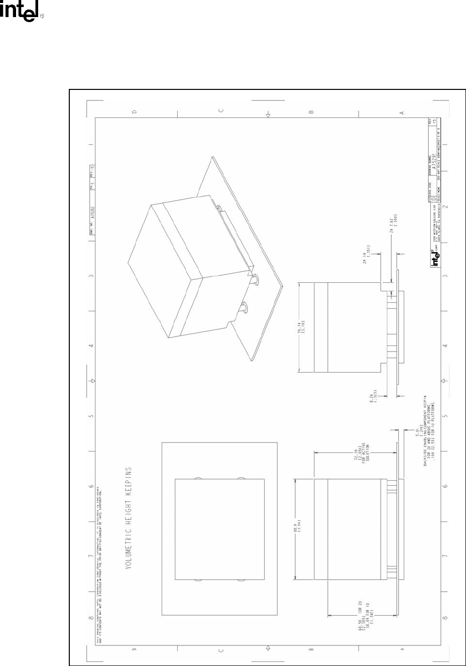
Fig
ure
A-
12.
B
asebo
ard
Ke
e
pou
t Foot
p
rint
D
efi
ni
tion
and
He
ig
ht
Res
tri
ctio
ns
for
Enab
lin
g
Com
p
one
nts (Sh
ee
t 5 of
6)
1
...
...
45
46
47
48
49
...
...
56