Guidelines

Mechanical Drawings
56 Intel® 3210 and 3200 Chipset Thermal/Mechanical Design Guide
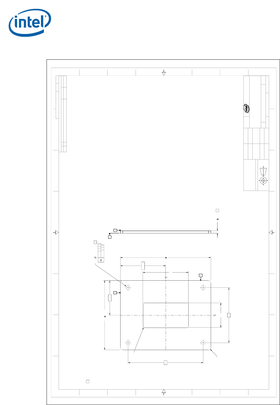
Figure B-11. Intel
®
3210 and 3200 Chipset Reference Thermal Solution - Backplate
8 7 6 5 4 3 2
H
G
F
E
D
C
B
A
8 7 6 5 4 3 2 1
H
G
F
E
D
C
B
A
THIS DRAWING CONTAINS INTEL CORPORAT ION CONFIDENTIAL INFORMATION. IT IS DISCLOSED IN CONFIDENCE AND ITS CONT ENTS
MAY NOT BE DISCLOSED, REPRODUCED, DI SPLAYED OR MODIFIED, WITHOUT THE PRI OR WRITTEN CONSENT OF INTEL CORPORATION.
REVISION HISTORY
ZONE REV DESCRIPTION DATE APPROVED
- A INITIAL DV RELEASE 03/09/07 KJC
D92620 1 A
DWG. NO SHT. REV
DEPARTMENT
R
2200 MISSION COLLEGE BLVD.
P.O. BOX 58119
SANTA CLARA, CA 95052-8119
PST
TITLE
BONE TRAIL, MCH, STIFFENER, PLATE
SIZE DRAWING NUMBER REV
A1 D92620 A
SCALE:
3
DO NOT SCALE DRAWING
SHEET
1
OF
1
SEE NOTESSEE NOTES
FINISHMATERIAL
03/09/07P.BORNEMANN
DATEAPPROVED BY
03/09/07R.AOKI
03/09/07A.VALPIANI
DATECHECKED BY
03/09/07K.CEURTER
DATEDRAWN BY
03/09/07K.CEURTER
DATEDESIGNED BY
UNLESS OTHERWISE SPECIFIED
INTERPRET DIMENSIONS AND TOLERANCES
IN ACCORDANCE WITH ASME Y14.5M-1994
DIMENSIONS ARE IN MILLIMETERS
ALL UNTOLERANCED LINEAR
DIMENSIONS ± 0.3
ANGLES ±1
THIRD ANGLE PROJECTION
52 0.05
47
66
39.75
29.5
59 0.25
79.5 0.25
TYP R1
40
21
0.25 A B C
0.125 A B
4X
53.48
+0.08
0
TYP R2
B
C
B
A
NOTES:
1. DIMENSIONS ARE IN MILLIMETERS
2. BREAK ALL SHARP EDGES AND CORNERS, GRIND PUNCH MARKS FLAT, NO BURRS FROM PUNCH
3. MATERIAL: AISI 1020 COLD ROLLED STEEL OR INTEL APPROVED EQUIVALENT
CRITICAL MATERIAL PROPERTIES: MIN YEILD STRENGTH = 250 MPa
4. FINISH: ZINC OR ELECTROLYTIC NICKEL PLATING PLUS CLEAR CHROMATE
PER ASTM B 633 COLORLESS
5 . CRITICAL TO FUNCTION DIMENSION/FEATURE