Guidelines

Mechanical Drawings
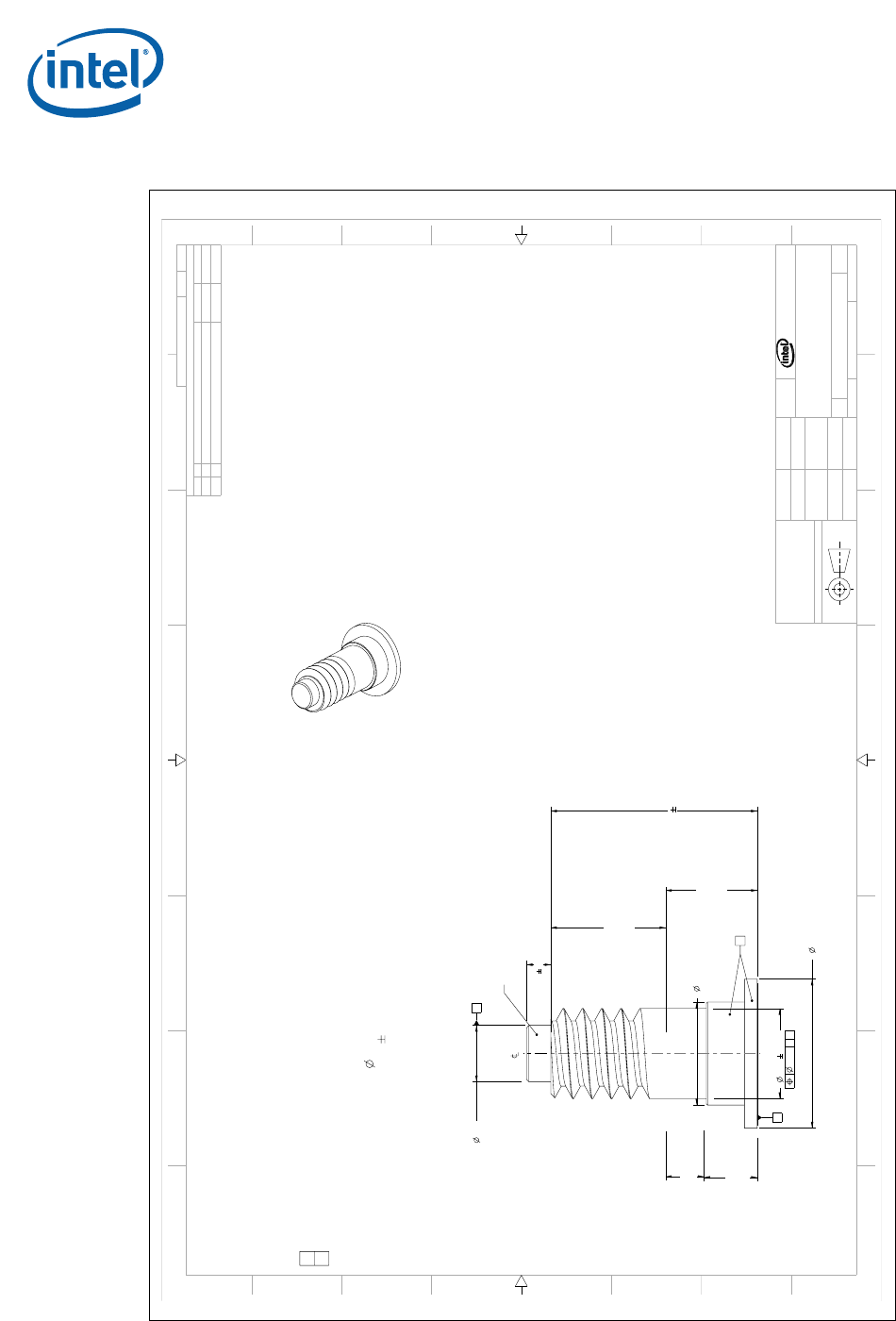
58 Intel® 3210 and 3200 Chipset Thermal/Mechanical Design Guide
§
Figure B-13. Intel
®
3210 and 3200 Chipset Reference Thermal Solution - Flush Mount Stud
8 7 6 5 4 3 2
H
G
F
E
D
C
B
A
8 7 6 5 4 3 2 1
H
G
F
E
D
C
B
A
THIS DRAWING CONTAINS INTEL CORPORAT ION CONFIDENTIAL INFORMATION. IT IS DISCLOSED IN CONFIDENCE AND ITS CONT ENTS
MAY NOT BE DISCLOSED, REPRODUCED, DI SPLAYED OR MODIFIED, WITHOUT THE PRI OR WRITTEN CONSENT OF INTEL CORPORATION.
REVISION HISTORY
ZONE REV DESCRIPTION DATE APPROVED
- A INITIAL DV RELEASE 03/09/07 KJC
1 PRODUCTION RELEASE 06/20/07 KJC
D92622 1 1
DWG. NO SHT. REV
DEPARTMENT
R
2200 MISSION COLLEGE BLVD.
P.O. BOX 58119
SANTA CLARA, CA 95052-8119
PST
TITLE
BONE TRAIL,STUD,SELF-CLINCHING, DOG POIN
T
SIZE DRAWING NUMBER REV
A1 D92622 1
SCALE:
20
DO NOT SCALE DRAWING
SHEET
1
OF
1
SEE NOTESSEE NOTES
FINISHMATERIAL
03/09/07P.BORNEMANN
DATEAPPROVED BY
03/09/07R.AOKI
03/09/07A.VALPIANI
DATECHECKED BY
03/09/07K.CEURTER
DATEDRAWN BY
03/09/07K.CEURTER
DATEDESIGNED BY
UNLESS OTHERWISE SPECIFIED
INTERPRET DIMENSIONS AND TOLERANCES
IN ACCORDANCE WITH ASME Y14.5M-1994
DIMENSIONS ARE IN MILLIMETERS
ALL UNTOLERANCED LINEAR
DIMENSIONS ± 0.3
ANGLES ±1
THIRD ANGLE PROJECTION
0.05 A B
3.51 0.08
()4
( )5.8
()
NOMINAL BACK PLATE
+ INSULATOR THICKNESS
2.2
()
NOMINAL DT PCB THICKNESS
1.58
8.525 0.35
1 0.25
B2.2
A
()
REFERENCE FOR
LOWEST THREADED
AREA
3.78
()
UNC #6-32
THREADED SECTIONS
(THREADS SHOWN FOR REFERENCE ONLY)
4.745
NOTES:
1. USE PEM PART NUMBER (TBD) OR INTEL APPROVED ALTERNATE
2. DIMENSIONS ARE IN MILLIMETERS
3. MATERIAL:
- LOW CARBON STEEL
4. FINISH:
- ZINC PLUS CLEAR CHROMATE PER ASTM B633 COLORLESS
5 . CRITICAL TO FUNCTION
6 . FEATURE DETAIL PER VENDOR SPECIFICATION
- FLUSH MOUNT HEAD
- PUSHOUT FORCE > 250LBS
- TORQUE OUT FORCE > 18 IN-LBS
- SHEET METAL HOLE SIZE = 4 +0.08 -0MM
- SHEET METAL THICKNESS = 2.2 0.05MM
7. REFERENCE AND NON-DIMENSIONED FEATURES MAY BE MODIFIED
PER INTEL APPROVAL
6
"DOG POINT" TO
ASSIST BLING ASSEMBLY