User's Manual
Manuals
Brands
Intel Manuals
Whiteboard Accessories
Intel Intel Whiteboard Accessories LGA 771
29
30
31
32
33
34
35
36
37
38
Table Of Contents
1 Introduction
1.1 Document Goals and Scope
1.1.1 LGA771 Socket Overview
1.1.2 Document Goals
1.1.3 Important Remarks
1.2 Terminology
1.3 Reference Documents
2 Assembled Component and Package Description
3 Mechanical Requirements
3.1 Attachment
3.2 Socket Components
3.2.1 Socket Body
3.2.2 Socket Actuation Mechanism
3.2.3 Pick and Place Cover
3.2.4 Socket Insertion / Actuation Forces
3.3 Socket Size
3.4 Socket Weight
3.5 Package/Socket Stackup Height
3.6 Socket Loading Specifications
4 Electrical Requirements
5 Environmental Requirements
5.1 Solvent Resistance
5.2 Durability
A Mechanical Drawings
Mechanical Drawings
38
LGA 771 Socket Mechanical Design Guide
ยง
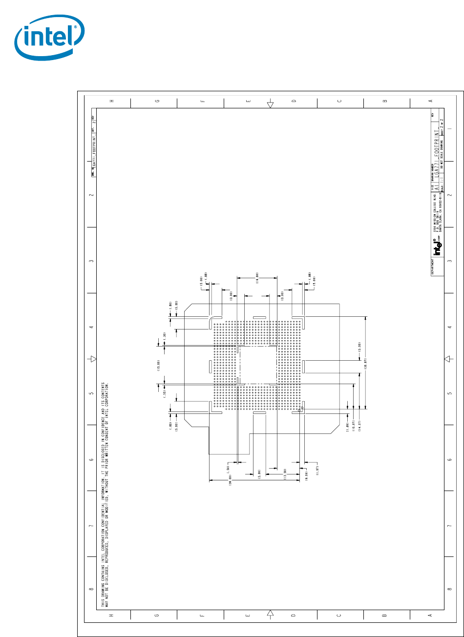
Figure A-13. LGA 771 So
cket
Footprint (Sheet 2 of 2)
1
...
...
36
37
38