Computer Hardware User Manual
Table Of Contents

8 BX400ii Interposer Board User’s Manual
Introduction
1.5 BX400ii Interposer Board Dimensions
This section provides the physical dimensions for the BX400ii Interposer Board.
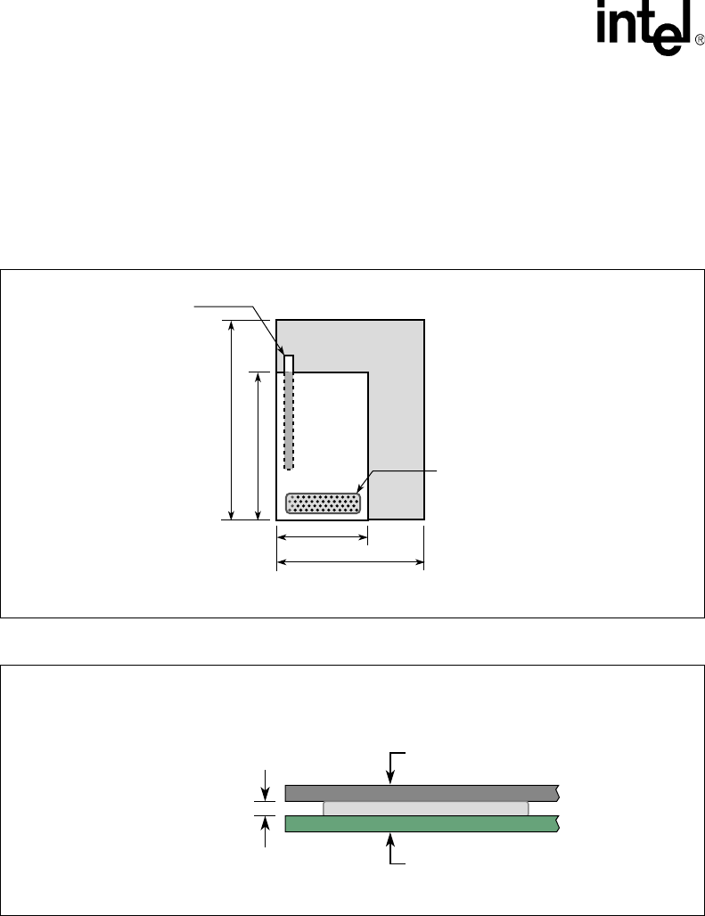
Note: Notice in Figure 2 the mechanical clearance requirements for the BX400ii Interposer Board
compared to the Low Power Module (LPM).
The clearance between the BX400ii Interposer Board and the OEM system board is approximately
3mmasshowninFigure 3. If additional clearance is required, a socket saver can be used adding
approximately 8 mm of additional clearance. Contact your Intel Field Sales Representative or a
tools vendor to request a socket saver.
Figure 2. BX400ii Keepout Space Requirements
Figure 3. BX400ii Connector Clearance
A6372-01
BX-400ii
Top View
LPM
190-Pin Connector
400-Pin Connector on the LPM
(Low Power Module)
2.5"
4"
4"
5.25"
A6869-01
Side View
Clearance ~ 3 mm
OEM System Motherboard
BX400ii Interposer Board










