Guidelines

Mechanical Drawings
48 Intel® 3210 and 3200 Chipset Thermal/Mechanical Design Guide
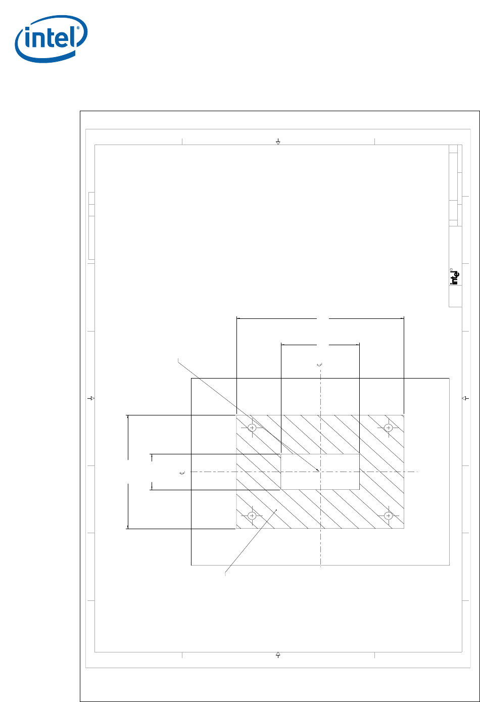
Figure B-3. Intel
®
3210 and 3200 Chipset Motherboard Component Back-Side Keep-Out
Restrictions
13
4
5678
B
C
D
A
123
4
5678
B
C
D
A
THIS DRAWING CONTAINS INTEL CORPORAT ION CONFIDENTIAL INFORMATION. IT IS DISCLOSED IN CONFIDENCE AND ITS CONT ENTS
MAY NOT BE DISCLOSED, REPRODUCED, DI SPLAYED OR MODIFIED, WITHOUT THE PRI OR WRITTEN CONSENT OF INTEL CORPORATION.
SHEET 2 OF 2DO NOT SCALE DRAWINGSCALE: 1
2200 MISSION COLLEGE BLVD.
P.O. BOX 58119
SANTA CLARA, CA 95052-8119
CORP.
R
TMD
1D94910XD
REVDRAWING NUMBERCAGE CODESIZEDEPARTMENT
D94910 2 1
DWG. NO SHT. REV
81
3.1890[]
60.6
2.3858[]
38.05
1.4980[]
19.05
.7500[]
SECONDARY SIDE KEEPOUTS
NO COMPONENTS THIS AREA
COMPONENT CENTER