Guidelines

Intel® 3210 and 3200 Chipset Thermal/Mechanical Design Guide 57
Mechanical Drawings
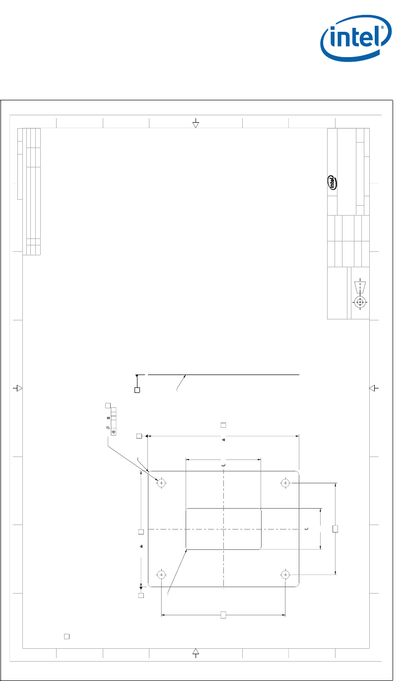
Figure B-12. Intel
®
3210 and 3200 Chipset Reference Thermal Solution - Insulator
8 7 6 5 4 3 2
H
G
F
E
D
C
B
A
8 7 6 5 4 3 2 1
H
G
F
E
D
C
B
A
THIS DRAWING CONTAINS INTEL CORPORAT ION CONFIDENTIAL INFORMATION. IT IS DISCLOSED IN CONFIDENCE AND ITS CONT ENTS
MAY NOT BE DISCLOSED, REPRODUCED, DI SPLAYED OR MODIFIED, WITHOUT THE PRI OR WRITTEN CONSENT OF INTEL CORPORATION.
REVISION HISTORY
ZONE REV DESCRIPTION DATE APPROVED
- A INITIAL DV RELEASE 03/09/07 KJC
1 PRODUCTION RELEASE 06/20/07 KJC
D92624 1 1
DWG. NO SHT. REV
DEPARTMENT
R
2200 MISSION COLLEGE BLVD.
P.O. BOX 58119
SANTA CLARA, CA 95052-8119
PST
TITLE
BONE TRAIL,INSULATOR,BACK PLATE
SIZE DRAWING NUMBER REV
A1 D92624 1
SCALE:
3
DO NOT SCALE DRAWING
SHEET
1
OF
1
SEE NOTESSEE NOTES
FINISHMATERIAL
03/09/07P.BORNEMANN
DATEAPPROVED BY
03/09/07R.AOKI
03/09/07A.VALPIANI
DATECHECKED BY
03/09/07K.CEURTER
DATEDRAWN BY
03/09/07K.CEURTER
DATEDESIGNED BY
UNLESS OTHERWISE SPECIFIED
INTERPRET DIMENSIONS AND TOLERANCES
IN ACCORDANCE WITH ASME Y14.5M-1994
DIMENSIONS ARE IN MILLIMETERS
ALL UNTOLERANCED LINEAR
DIMENSIONS ± 0.3
ANGLES ±1
THIRD ANGLE PROJECTION
47
66
THICK0.127
C459.5 0.25
B
480.5
0.25
TYP R1
40
21
0.2 A C B
4X
44.2 0.2
TYP R2
A
NOTES:
1. DIMENSIONS ARE IN MILLIMETER
2. MATERIAL: POLYPROPYLENE SHEET( ITW FORMEX GK-5BK) .127MM NOMINAL THICKNESS
ONE SIDE PRESSURE SENSITIVE ADHESIVE APPLIED; TOTAL THICKNESS= .178MM.
3: FLAMMABILITY: UL 94-V0 OR VTM-0 RATING
4 . CRITICAL TO FUNCTION FEATURE.