Guidelines
Manuals
Brands
Intel Manuals
Other
Intel Xeon Processor X7542
41
42
43
44
45
46
47
48
49
50
Dua
l-Cor
e Int
el
®
Xeon
®
Pro
cessor
700
0 Se
quenc
e Th
erma
l /Mecha
nic
al G
uide
lines
43
Me
cha
nical
Dr
awi
ng
s
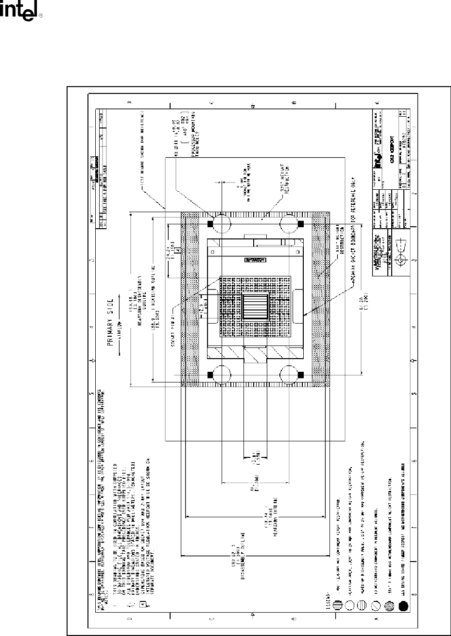
Fig
ure
A-
8. B
a
sebo
ard
Kee
pou
t
Foot
pr
int
D
efi
nit
ion
and
Hei
g
ht Re
st
ric
tions
for
Enab
lin
g
Com
p
one
nts (Sh
ee
t 1 of
6)
1
...
...
41
42
43
44
45
...
...
56