64-bit Intel Xeon Processorwith 1MB L2 Cache Thermal/Mechanical Design Guidelines
Table Of Contents

Mechanical Drawings
R
34 64-bit Intel
®
Xeon™ Processor MP with 1 MB L2 Cache
Thermal/Mechanical Design Guidelines
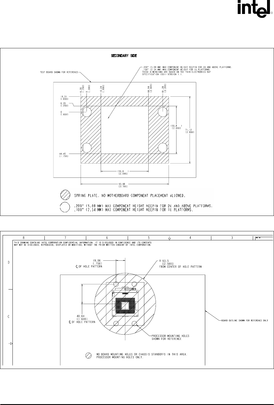
Figure A-10. Baseboard Keepout Footprint Definition and Height Restrictions for Enabling
Components (Sheet 3 of 5)
Figure A-11. Baseboard Keepout Footprint Definition and Height Restrictions for Enabling
Components (Sheet 4 of 5)










