64-bit Intel Xeon Processorwith 1MB L2 Cache Thermal/Mechanical Design Guidelines
Manuals
Brands
Intel Manuals
Other
Intel Xeon Processor 2.50 GHz, 1M Cache, 400 MHz FSB
31
32
33
34
35
36
37
38
39
40
Table Of Contents
Introduction
Objective
Scope
References
Definition of Terms
Thermal/Mechanical Reference Design
Mechanical Requirements
Performance Target
Critical Interface Dimensions (CID)
Thermal Requirements
Thermal Profile
TCONTROL Definition
Performance Targets
Characterizing Cooling Solution Performance Requirements
Fan Speed Control
Processor Thermal Characterization Parameter Relationships
Chassis Thermal Design Considerations
Thermal/Mechanical Reference Design Considerations
Heatsink Solutions
Thermal Interface Material
Summary
Assembly Overview of the Intel Reference Thermal Mechanical
Thermal Solution Performance Characteristics
Structural Considerations of Cooling Solution
Components Overview
R
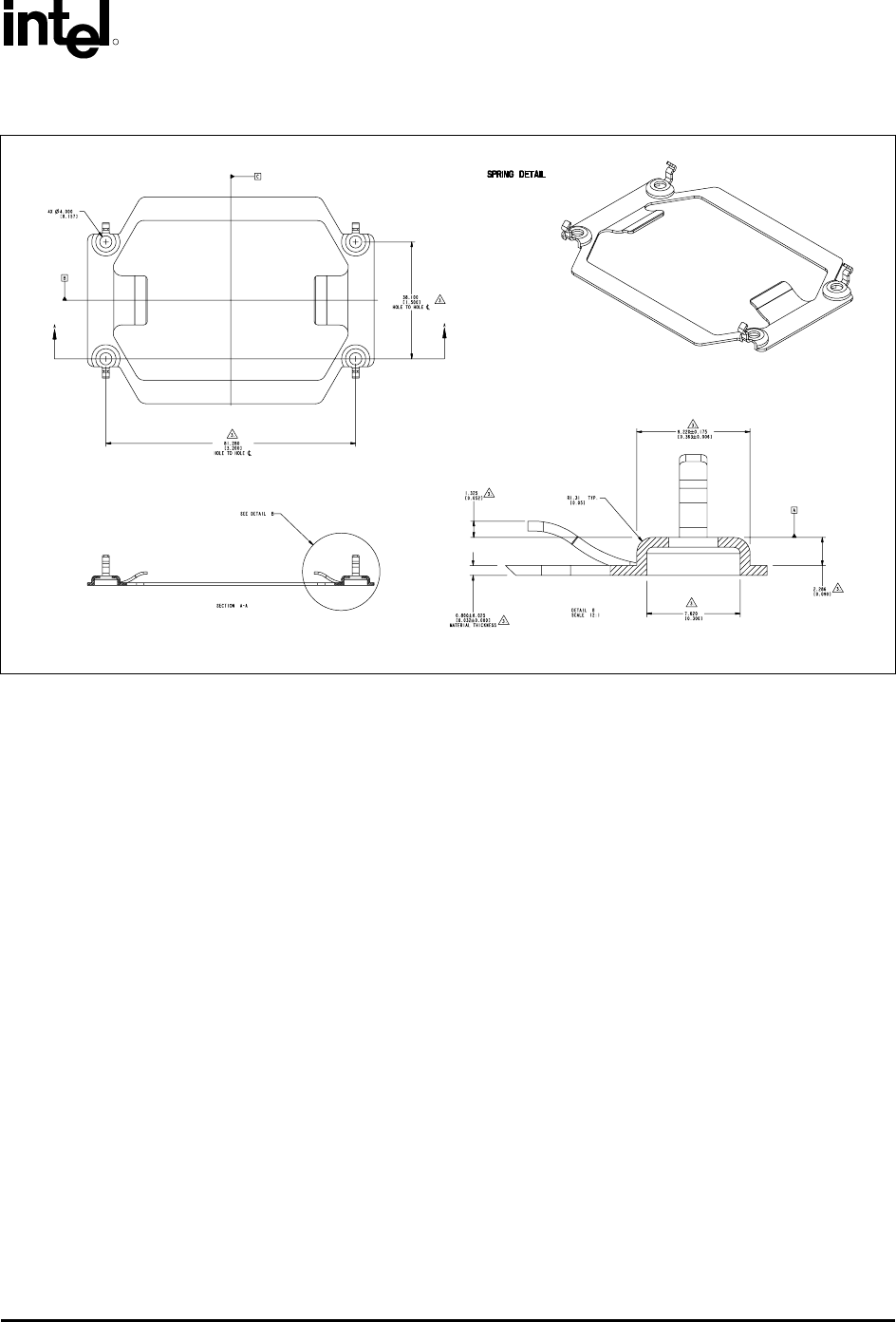
Mechanical Drawing
s
64-bit Intel
®
Xeon™ Processor MP with 1 MB L2 Cache
31
Thermal/Mechanical Design Guideli
nes
Figure A-7. Cooling Solution Hat Spring (Sheet 3 of 3)
1
...
...
29
30
31
32
33
...
...
62