64-bit Intel Xeon Processorwith 1MB L2 Cache Thermal/Mechanical Design Guidelines
Table Of Contents

Thermal/Mechanical Reference Design
R
10 64-bit Intel
®
Xeon™ Processor MP with 1 MB L2 Cache
Thermal/Mechanical Design Guidelines
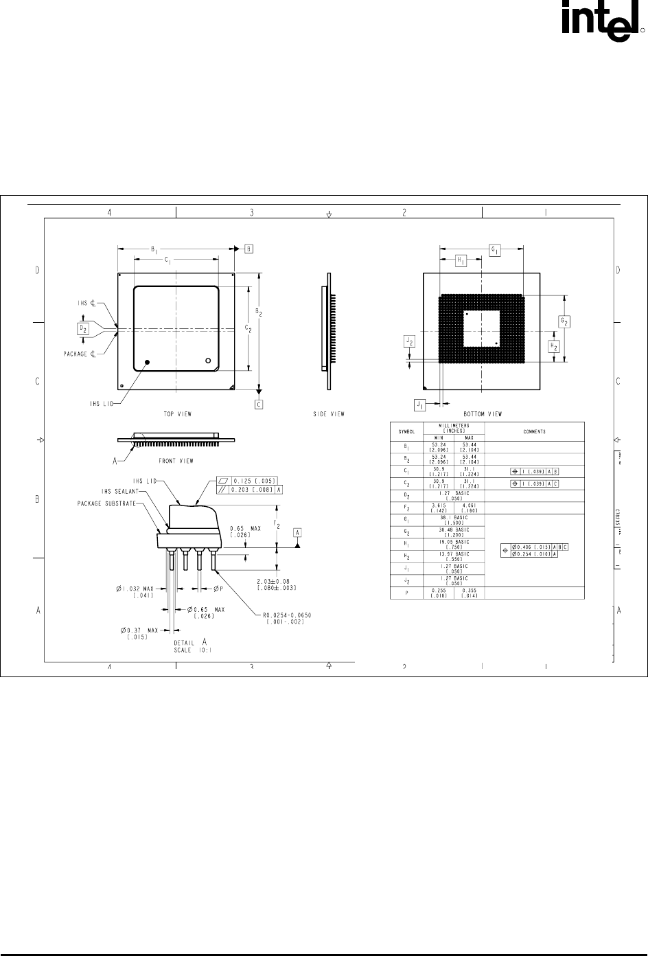
2.1.2 Critical Interface Dimensions (CID)
The CID drawing illustrates the key interfaces between the package and the thermal/mechanical
solution for the processor. Should there be any conflict, this drawing is superseded by the drawing
in the processor datasheet.
Figure 2-1.Critical Interface Dimensions (Sheet 1 of 2)










