Specification Sheet

RECESSED CLEARANCE - SWIVEL ROTATION
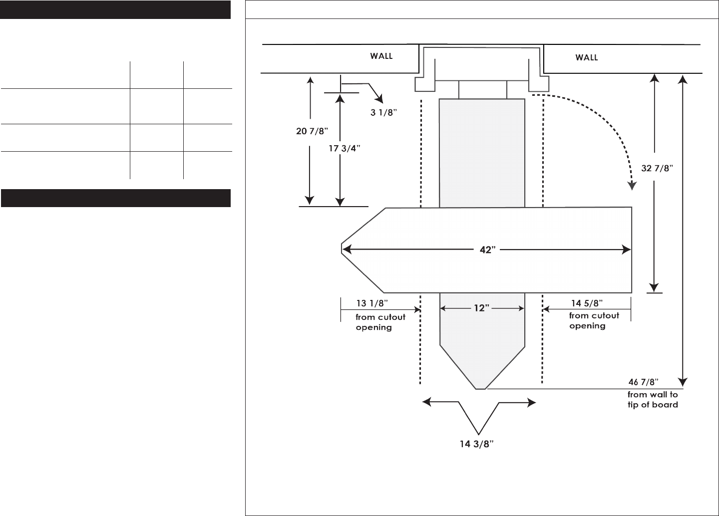
Minimum required space for the ironing board to lower
completely and swivel without hitting an obstacle.
RECESSED
MOUNT
SURFACE
MOUNT
1. Clearance from Wall to
Tip of Board
46 7/8” 50 7/8”
2. Le/Right Clearance for
Swivel
14 5/8”
13 1/8”
14 5/8”
13 1/8”
3. Hinge Side Clearance for
180º Degree Door Swing
16” 16”
Swivel Clearance Requirements
For Further Review
1. Board MUST come down fully in order to
swivel
Because the ironing board needs to clear the sides of
the cabinet before it can swivel, the board needs to be
able to drop down all the way to engage the swivel
mechanism, requiring 46 7/8” in front of the recessed
unit, or 50 7/8” clearance for surface mount units.
2. Adequate space required on both sides of
cabinet for board to swivel
Because the swivel mechanism is positioned under
the middle portion of the ironing board, you will want
to ensure proper clearance on both sides of the unit,
regardless of which direction you will be swiveling the
board. The minimum requirement needed to swivel the
board 90º to the le is 14 5/8” to the right of the cabinet
and 13 1/8” to the le. To ensure the board can swivel
both directions, you will need 14 5/8” on both sides of
the cabinet.
3. Door MUST be able to open 180º
The door needs to open flush against the wall in order for
the swivel to freely turn le or right, requiring 16” on the
hinge side for a flush open. Door can be hinged on either
the le or right side of the ironing center.
Page 2 of 3



