User's Manual

TS Series Conveyors Technical Manual 7610-002-98-29
Issued: 02-15-2006 Revised: N/A
SECTION 1: SPECIFICATION INFORMATION
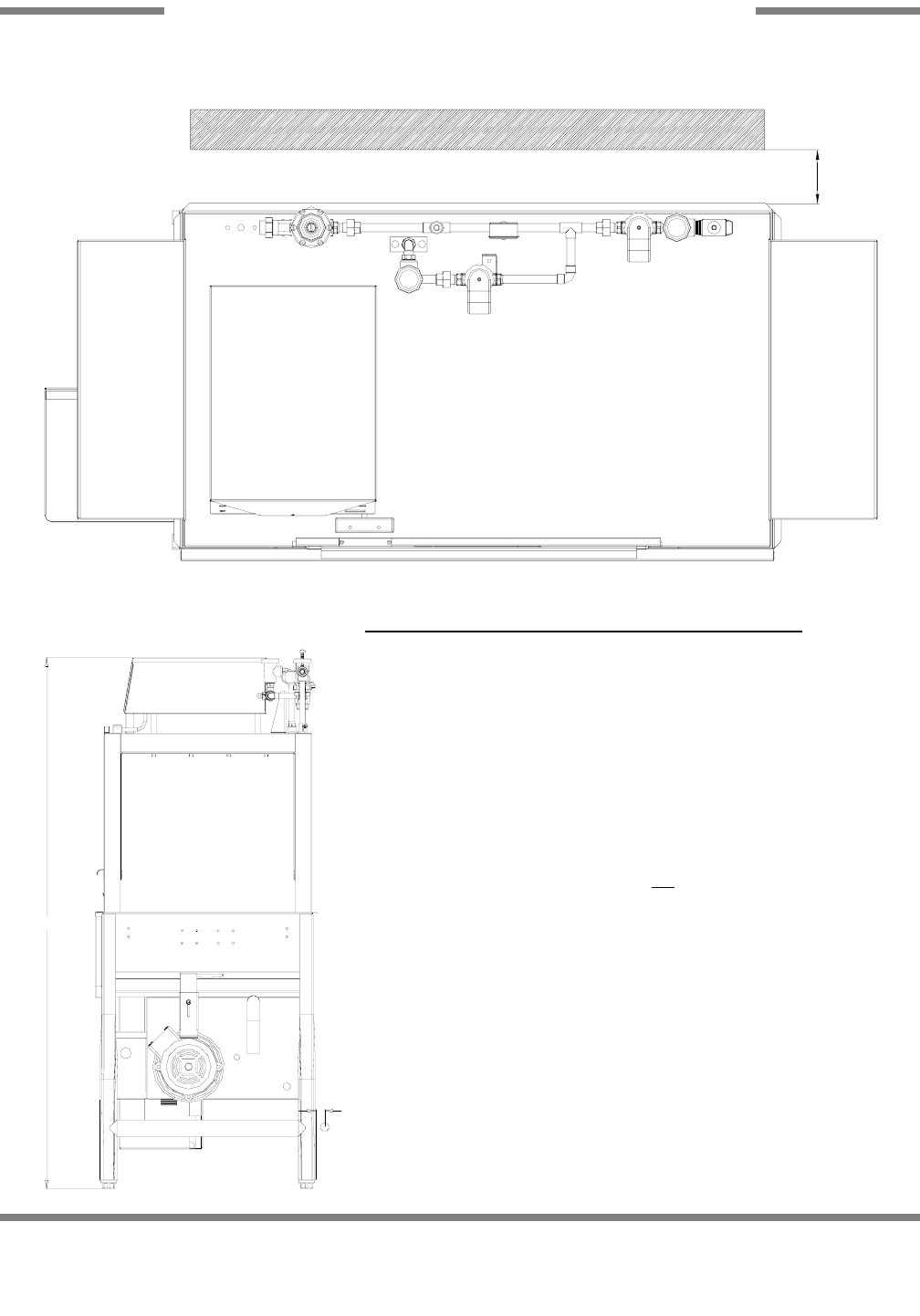
TS-44/TSC-44 DIMENSIONS (CONTINUED)
6
NOTES CONCERNING THE TS-44/TSC-44 DIMENSIONS:
1. All dimensions are +/- 1/2” in the vertical due to adjustment of the bullet
feet.
2. A minimum of 4” spacing is required between the unit and the walls on all
sides.
3. The maximum recommended distance between the unit and any external
booster heater (electric or gas) is 20 feet.
4. Booster heaters have seperate electrical requirements from the machines.
5. Machine width as dimensioned does not
include an approximate 3” for the
conduit that is attached to the back of the machine.
66"
HEIGHT WITH DOOR OPEN: 72"
F
1"
WALL
4”










