User's Manual

TS Series Conveyors Technical Manual 7610-002-98-29
Issued: 02-15-2006 Revised: N/A
SECTION 1: SPECIFICATION INFORMATION
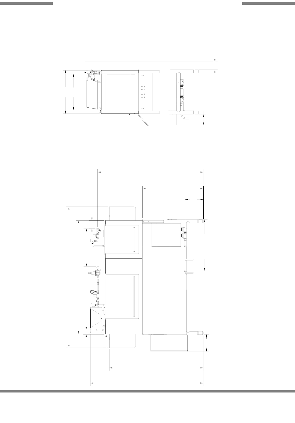
TS-66/TSC-66 (RIGHT TO LEFT) DIMENSIONS
9
A
B
C
D
Add 3” to overall width to
take into account the con-
duit on the back of the
machine.
10”
29 7/8”
22 ”
82 ”
3”
8”
53”
10
”
66”
66” TABLE TO TABLE
61 1/4”
25”
21”
5 3/4”
WALL
4 1/2”
34”
5 ”










