User's Manual

TS Series Conveyors Technical Manual 7610-002-98-29
Issued: 02-15-2006 Revised: N/A
SECTION 1: SPECIFICATION INFORMATION
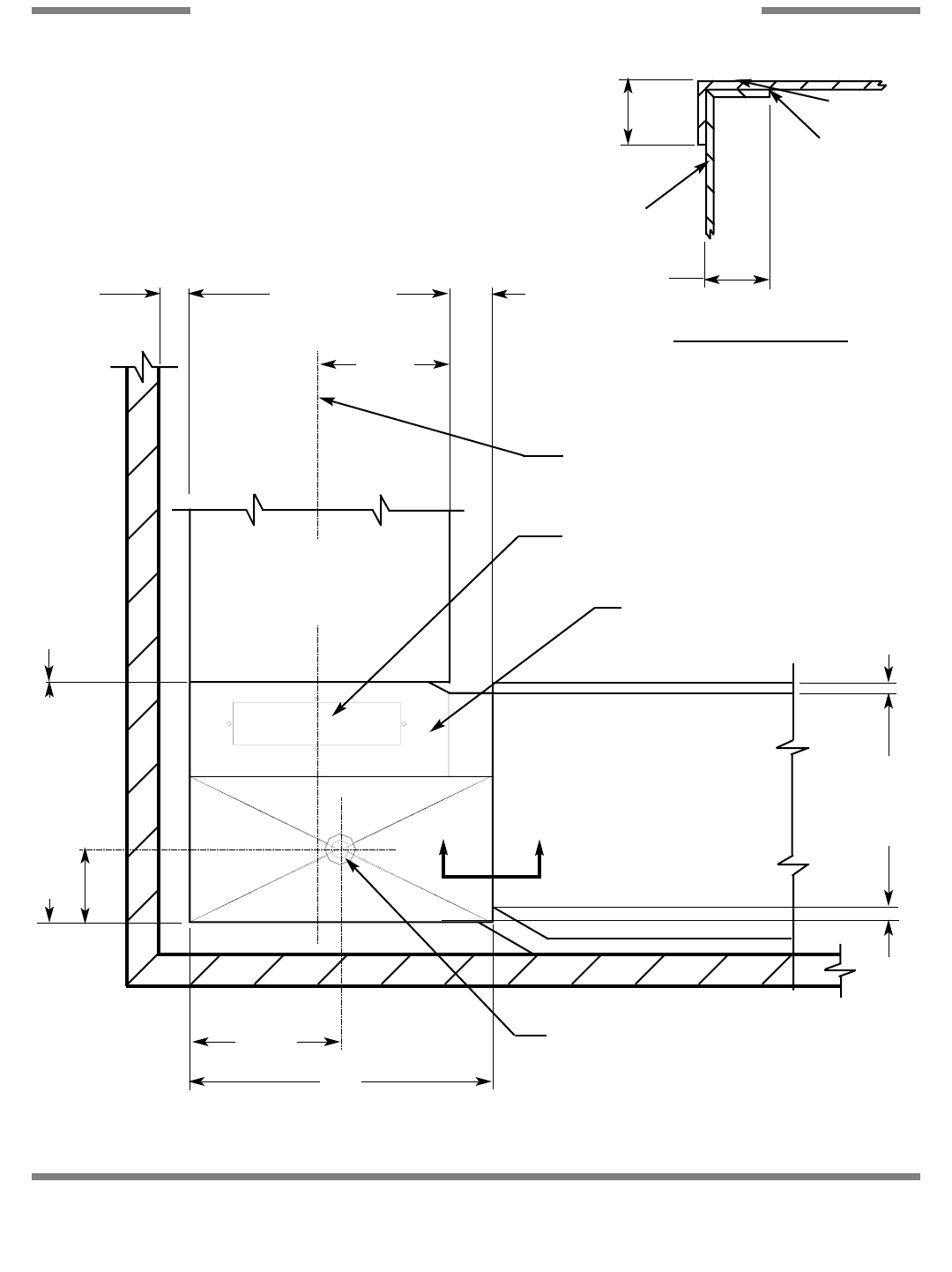
SIDE LOADER (LEFT TO RIGHT) DIMENSIONS
12
NOTE: ALL DIMENSIONS ARE TYPICAL.
23” or 30” depending on
the width of the side loader.
CONVEYOR
DISHWASHER
LENGTH
8” or 15” depending on the
width of the side loader.
4 1/2”
MINIMUM
25”
DISHWASHER
5”
12 1/2”
14 1/2”
29”
1 1/2” TABLE
ROLL
20 3/4”
OPENING
1”
A A
1/2”
MINIMUM
1/2”
DISHTABLE
USE SILICONE
BETWEEN
TABLE AND LIP
OF SIDE
LOADER TO
PREVENT LEAK-
AGE.
WALL OF SIDE
LOADER
SECTION “A-A”
CENTER-LINE
DISHMACHINE
SPLASH SHIELD
VENT CONNECTION
OPENING
1 1/2” DRAIN. CONNECTED
TO DISHMACHINE DRAIN
LINE
CONVEYOR
DISHMACHINE










