User's Manual
Manuals
Brands
Jackson Manuals
Marine Battery
Jackson Jackson TSC-66GPP
21
22
23
24
25
26
27
28
29
30
TS Series Conveyors T
echnical Manual 7610-002-98-29
Issued: 02-15-2006 Revised: N/A
SECTION 1: SPECIFICA
TION INFORMA
TION
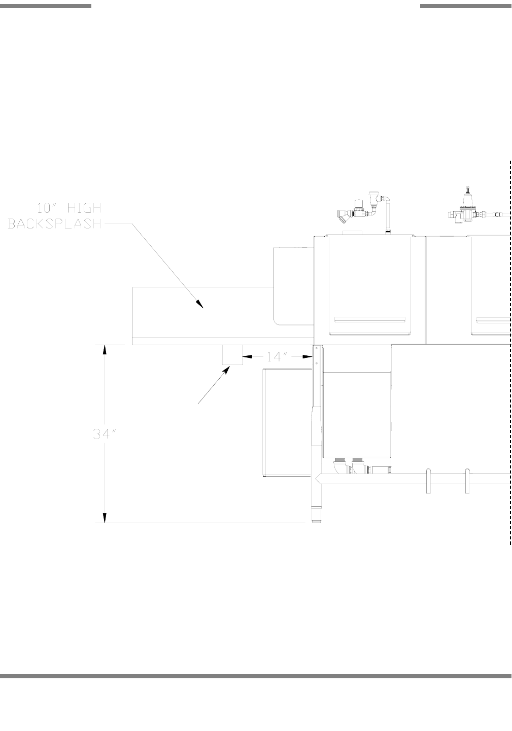
SCRAP TROUGH DIMENSIONS
15
NOTE: DIMENSIONS
ARE TYPICAL
FOR BOTH ENDS.
SCRAP TROUGH
1
...
...
20
21
22
23
24
...
...
38