Specification Sheet

QA31000A www.jacuzzi.com TechnicalSpecication
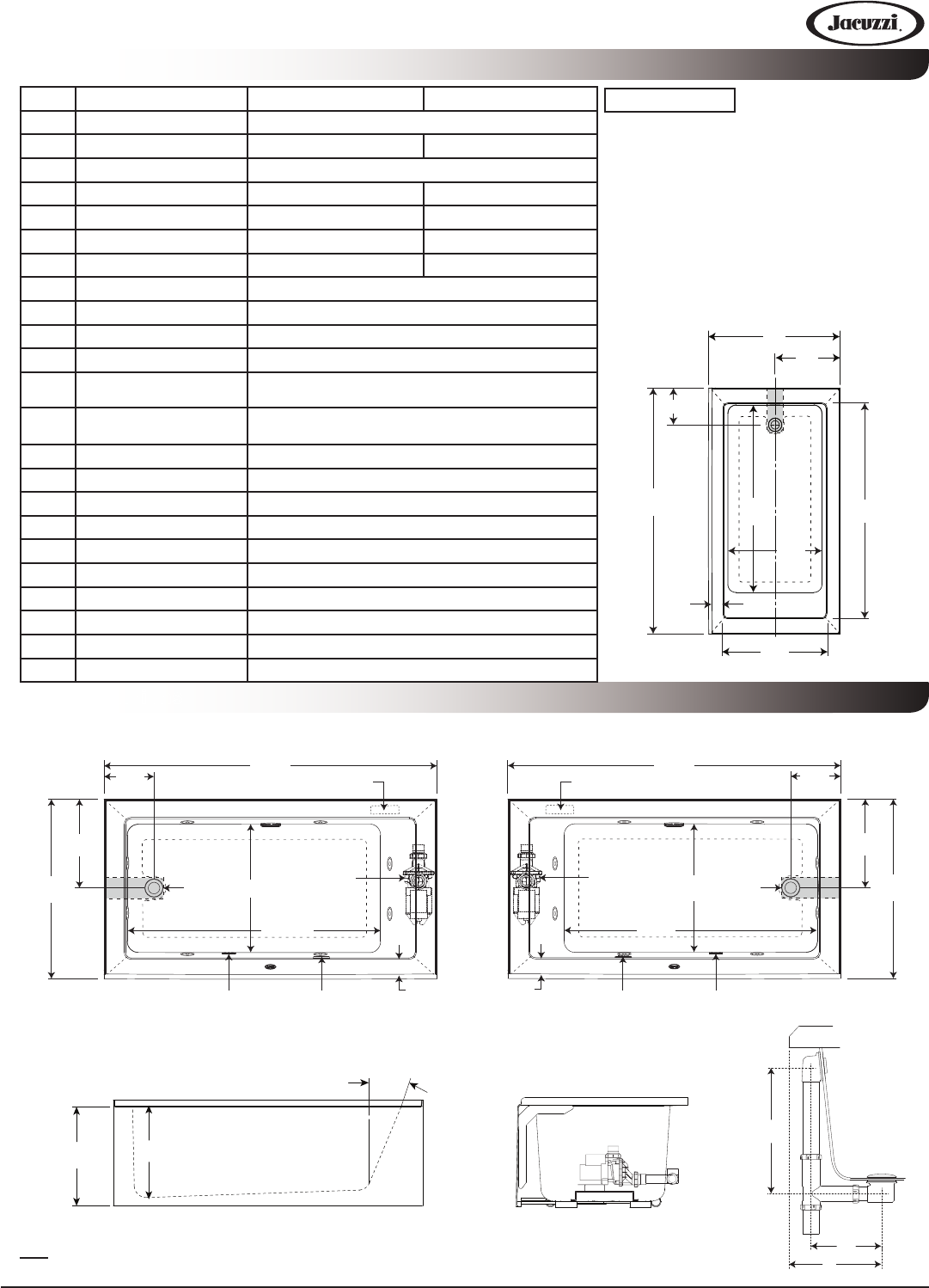
Key Dimensions
*Deckwidthreectsonlyareaindicatedondetail.
NOTE:Drawingsnottoscale.
(LeftEndDrain/RightSidePump) (RightEndDrain/LeftSidePump)
NOTE
Theoveralldimensionsarenominalwithatoleranceof
+0and-.25"(6mm).
ElectricalSpecications
(Eachcomponentrequiresaseparate,dedicatedGFCI
protectedcircuit)
Motor/Pump 120V15A60HZ
Heater(optional*) 120V15A60HZ
*Heatercircuitnotrequriedonunitsequippedwith
Whisper+Technology™.
Drain Kit:
Mustpurchase:
M F 3 5 8 2 6 - L i n e a r D W O K i t B N
MF35 82 7- L in ea r DW O Ki t CH R
MF35845-LinearDWOKitORB
Soaking Bathtub
Letter Description Soaking Whirlpool
-
DrainLocation LeftHand/RightHand
-
PumpLocation N/A Oppositeendofdrainlocation
-
CutoutTemplate N/A
-
TotalWeight 746lb(338kg) 761lb(345kg)
-
FloorLoading 56lb/ft
2
(278kg/m
2
) 57lb/ft
2
(278kg/m
2
)
-
OperatingGallons(Min/Max) 53Gal(201L) 31Gal/53Gal(117L/201L)
-
ProductWeight-Empty 55lb(25kg) 70lb(32kg)
-
SoakingDepth 15.00"(381mm)
L
OuterLength 60.00"(1524mm)
W
OuterWidth 32.00"(813mm)
H
OverallHeight 19.50"(495mm)
J
InteriorDimensions(JWxJL)
BottomofBath
23.00"x45.00"(584mmx1143mm)
K
InteriorDimensions(KWxKL)
TopofBath
23.13"x52.13"(588mmx1324mm)
L2
InteriorDepth-DrainEnd 17.00"(432mm)
A
OverowHeight 17.50"(445mm)
B
LongEdgetoDrainCenter 9.00"(229mm)
C
ShortEdgetoDrainCenter 16.00"(406mm)
D
DrainShoeLength 6.75"(171mm)
E
FlangeHeight 1.25"(32mm)
F
DeckWidth* 3.50"(89mm)
G
ServiceAccessDimensions NoServiceAccess
I
FloorCutoutforDrain 12.00"x4.00"(305mmx102mm)
M
BackrestAngle 23°
L
HEATER
(OPTIONAL)
PUMP
CONTROL PANELCHROMATHERAPY LIGHTING
(OPTIONAL)
C
W
I J (W)
J (L)
B
L
HEATER
(OPTIONAL)
PUMP
CONTROL PANEL CHROMATHERAPY LIGHTING
(OPTIONAL)
J (L)
J (W)
B
C
W
I
F
F
W
C
B
L
J (L)
J (W)
F
I
K (L)
K (W)
PUMP
HEATER
(OPTIONAL)
D
A
B
H
M
L2
Linea™ 6032 Skirted Bathtub - Soaking & Whirlpool
8WHIRLPOOLJETS
8WHIRLPOOLJETS

