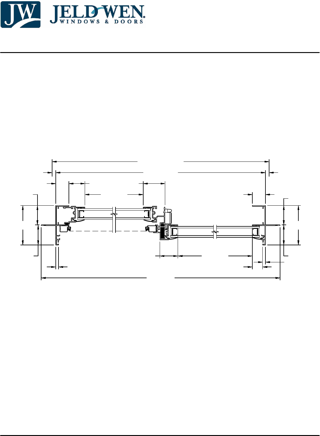
Specification

1/4" Frame Size
Rough Opening
Daylight
Opening
Daylight
Opening
Unit Size
2 11/16"
1 3/8"
1 5/16"
7/8" 1 1/16"
3/16"
1 1/2"
1/4"
7/8"
3/16"
2 11/16"
1 3/8"
1 5/16"
1 1/4"
11/16"
Scale: NTS
5
OPERATOR - HORIZONTAL SECTION
Architectural Design Manual
February 2017
Product specifications may change without notice.
Questions? Consult JELD-WEN customer service.
BUILDERS ALUMINUM
ALUMINUM WINDOWS
SLIDER