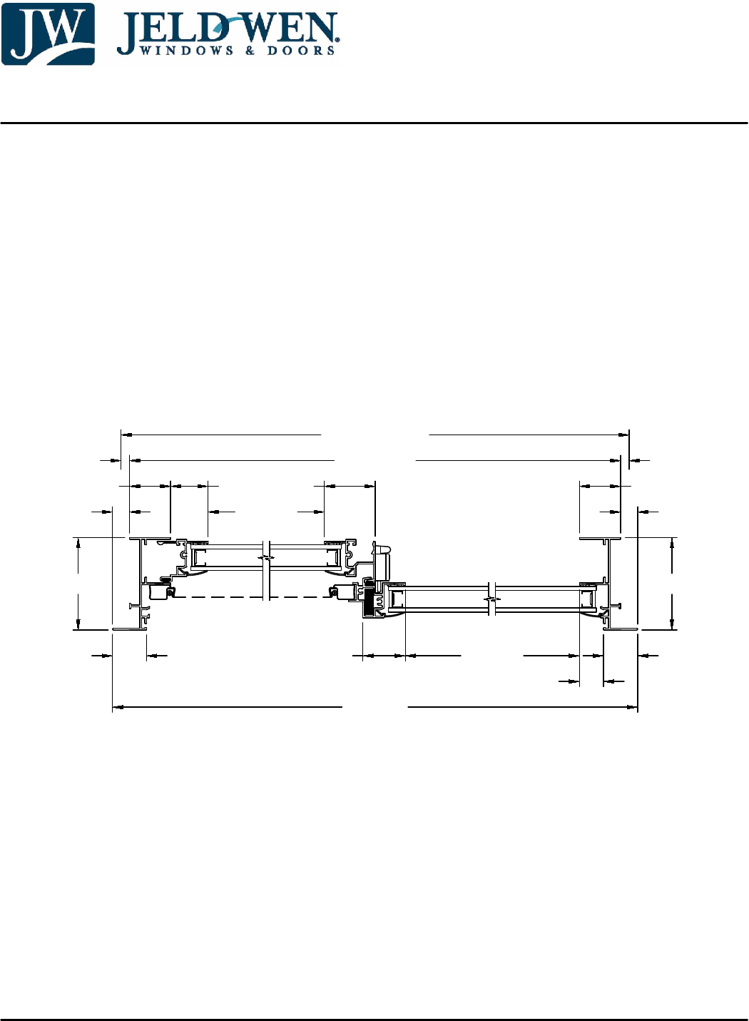
Specification

1/4" Frame Size
Rough Opening
Daylight
Opening
Daylight
Opening
Unit Size
1 3/16" 1 1/16"
1"
1 1/2"
1/4"
1 3/16"
1"
2 11/16"
1 1/4"
11/16"
2 11/16"
1/2"1/2"
Scale: NTS
8
FLANGE FRAME - HORIZONTAL SECTION
Architectural Design Manual
February 2017
Product specifications may change without notice.
Questions? Consult JELD-WEN customer service.
BUILDERS ALUMINUM
ALUMINUM WINDOWS
SLIDER