Specification

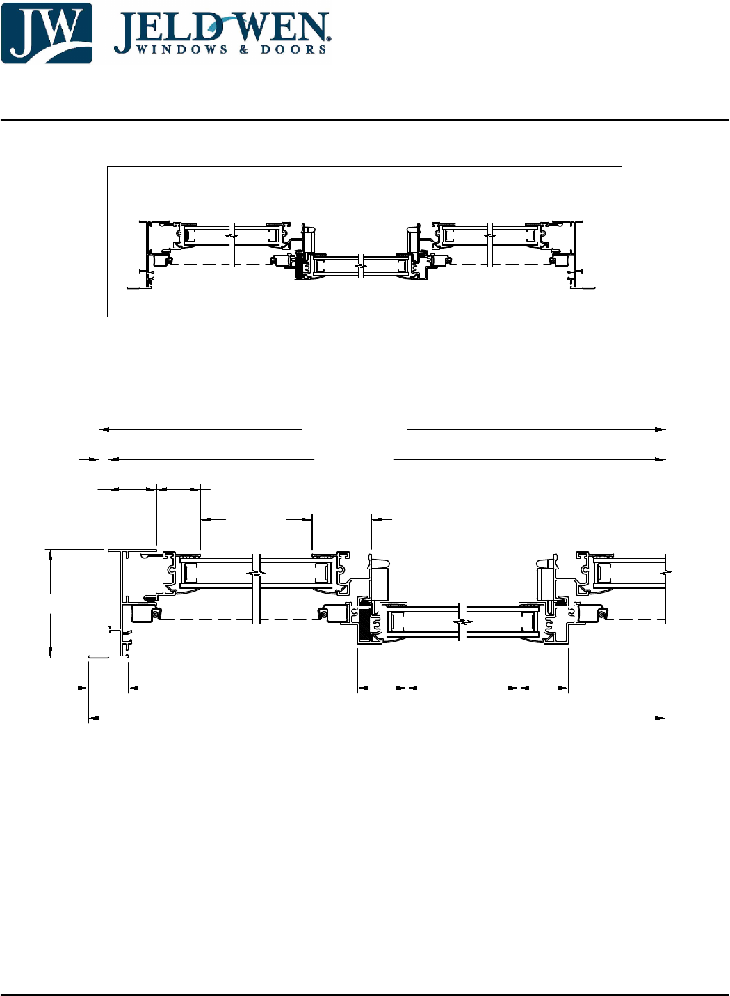
2 11/16"
1/4"
Daylight
Opening
1 3/16" 1 1/16"
1 1/2"
Daylight
Opening
1 1/4" 1 1/4"
Frame Size
Rough Opening
Unit Size
1"
Scale: NTS
9
3 WIDE FLANGE FRAME - HORIZONTAL SECTION
Architectural Design Manual
February 2017
Product specifications may change without notice.
Questions? Consult JELD-WEN customer service.
BUILDERS ALUMINUM
ALUMINUM WINDOWS
SLIDER
NOT TO SCALE