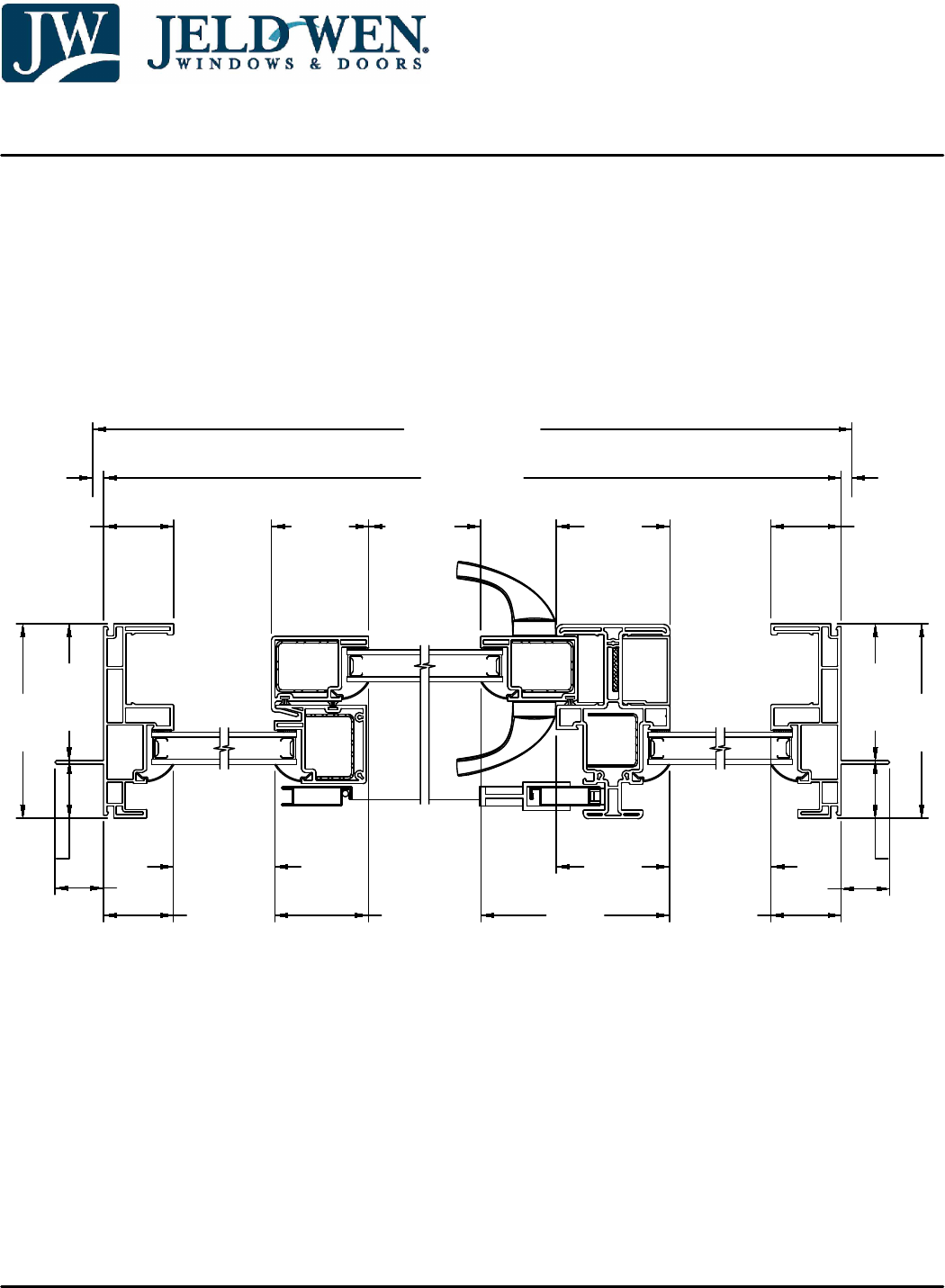
Specification

Daylight
Opening
Daylight
Opening
Daylight
Opening
Frame Size
Rough Opening
1/4"1/4"
2 1/4" 1 3/4"
4 3/8"2 3/16"
2 5/8"
2 5/8"1 5/8" 1 5/8"
1 5/8"
1 1/8"
4 1/2"
1 5/16"
3 3/16"
1 5/8"
1 1/8"
4 1/2"
1 5/16"
3 3/16"
Scale: NTS
14
3 WIDE - FIXED / OPERATING / FIXED (OXO) - HORIZONTAL SECTION
Architectural Design Manual
September 2017
Product specifications may change without notice.
Questions? Consult JELD-WEN customer service.
BUILDERS VINYL
VINYL PATIO DOOR
SLIDING PATIO DOOR