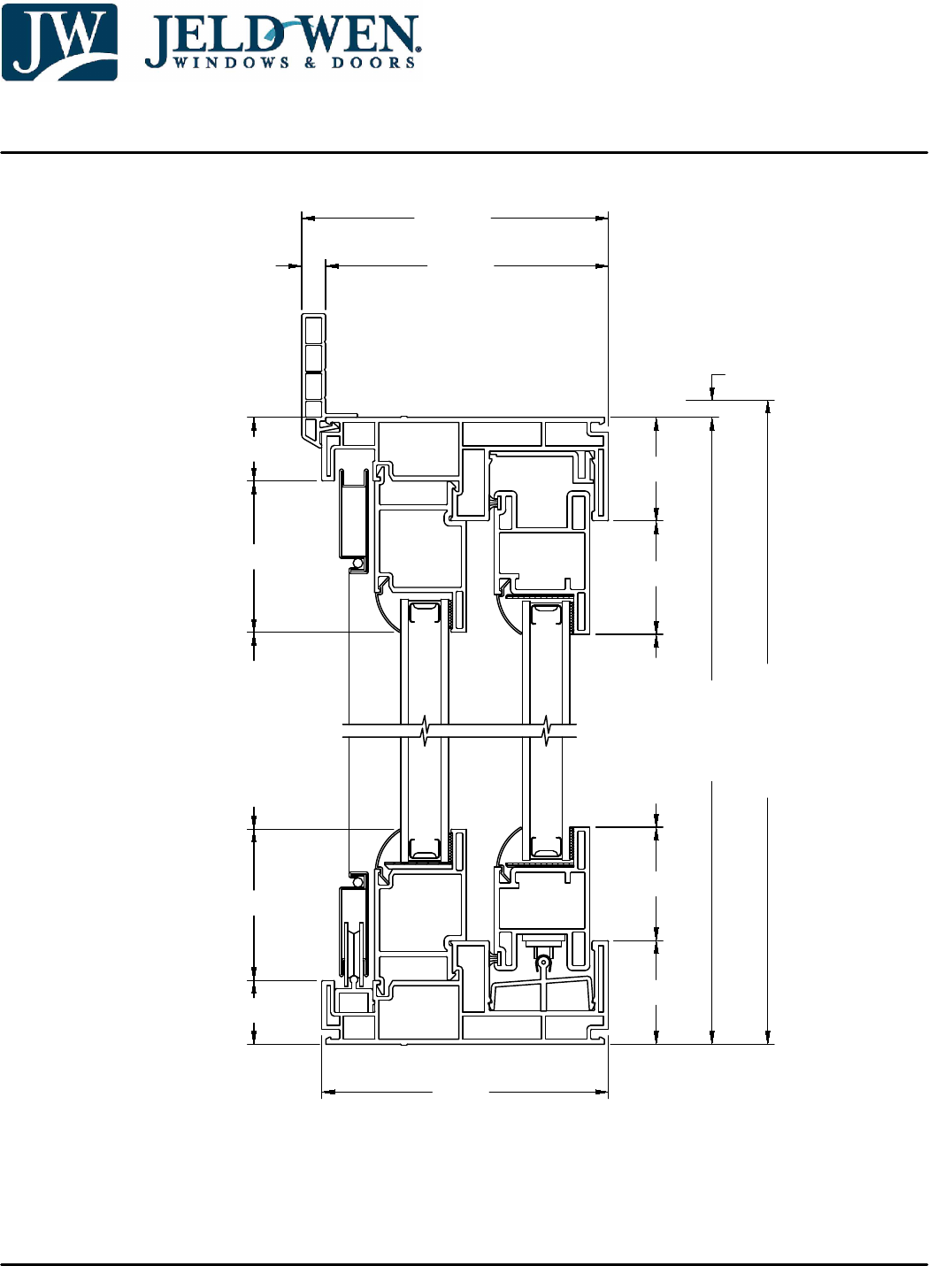
Specification

Frame Size
Rough Opening
Daylight Opening
1/4"
1 3/4"
1 5/8"
1 3/4"
1 5/8"
Daylight Opening
2 3/8"
2 3/8"
1"
1"
4 13/16"
3/8" 4 7/16"
4 1/2"
FLUSH FIN - VERTICAL SECTION
Architectural Design Manual
September 2017
Product specifications may change without notice.
Questions? Consult JELD-WEN customer service.
BUILDERS VINYL
VINYL PATIO DOOR
SLIDING PATIO DOOR
Scale: 6" = 1' - 0"
7