Dimensions

JENN-AIR
®
DETAILED PLANNING DIMENSIONS
1 of 4
8109AdZw714
IMPORTANT: Dimensional specifications are provided for planning purposes only.
Do not make any cutouts based on this information. Refer to the Installation or Use & Care Guide
before selecting cabinetry, verifying electrical/gas connections, making cutouts or beginning installation.
All Jenn-Air
®
appliances are appropriately UL, CUL or CSA approved.
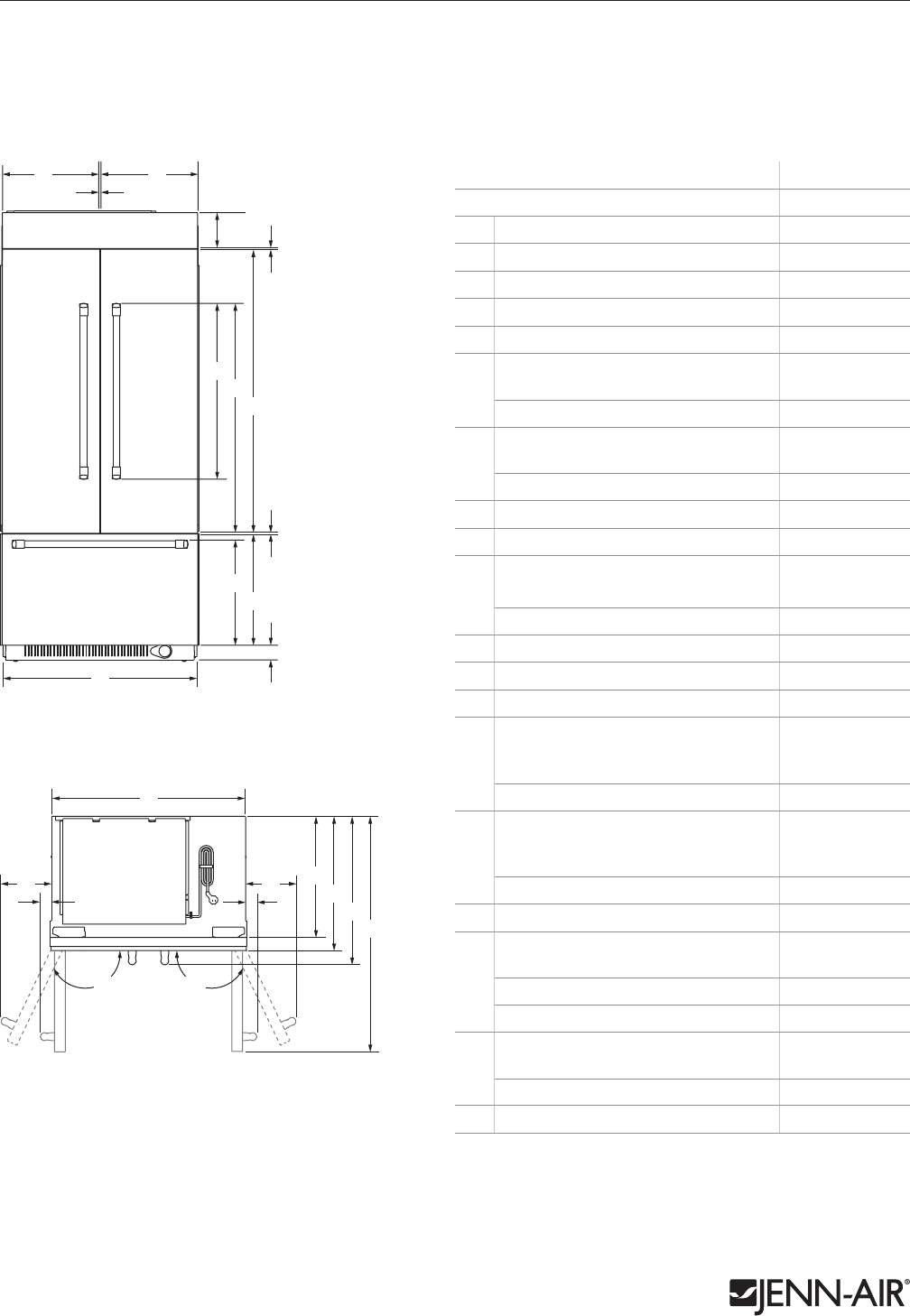
36" FULLY INTEGRATED FRENCH DOOR REFRIGERATOR
(BASE UNIT REQUIRES SUITE-COORDINATING PANEL KIT OR CUSTOM PANELS AND HANDLES)
JF36NXFXDE – 35
3
⁄4" x 83
1
⁄8" x 24" (without door/handles)
PRODUCT DIMENSIONS
MODEL # JF36NXFXDE
in cm
A
Width of each door 17
5
⁄8 44.8
B
Space between doors
1
⁄8 0.3
C
Overall width 35
3
⁄4 90.8
D
Height of top grille and bracket 6
1
⁄2 16.5
E
Space between doors and top grille
3
⁄8 0.8
F
Height of door handles
Pro-Style
®
Stainless 32
3
⁄8 82.2
Euro-Style Stainless 37
7
⁄8 96.0
G
Height to top of door handles
Pro-Style
®
Stainless 42
3
⁄8 107.6
Euro-Style Stainless 44
7
⁄8 114.0
H
Height of doors 52
3
⁄8 133.0
I
Space between doors and drawer
1
⁄8 0.3
J
Height to top of drawer handle
Pro-Style
®
Stainless 19
3
⁄8 49.2
Euro-Style Stainless 19
1
⁄4 48.7
K
Height of drawer 20
1
⁄2 52.1
L
Height of bottom grille 3 7.6
M
Width of recessed refrigerator 35 88.9
N
Width from side of refrigerator
to handle – door fully open 110°
Pro-Style
®
Stainless 7 17.8
Euro-Style Stainless 6
1
⁄2 16.5
O
Width from side of refrigerator
to handle – door open 90°
Pro-Style
®
Stainless 2 5.1
Euro-Style Stainless 1
1
⁄2 3.9
P
Depth without door panel kit 24 61.0
Q
Depth with doors
Pro-Style
®
Stainless panel kit 24
3
⁄4 62.9
Euro-Style Stainless panel kit 24
3
⁄4 62.9
Custom panel (
3
⁄4"/1.9 cm) 24
3
⁄4 62.9
R
Depth with handles
Pro-Style
®
Stainless 27
3
⁄8 69.5
Euro-Style Stainless 26
7
⁄8 68.3
S
Depth with doors open 90° 41 104.1
JF42NFXDW
42" FRENCH DOOR BOTTOM MOUNT
AA
B
D
H
G
F
E
I
L
K
J
C
M
O
N
N
O
R
P
Q
I
H
G
F
E
D*
A*
B*
Floor
C*
S
110º
110º
FRONT VIEW
TOP VIEW
JF42NFXDW
42" FRENCH DOOR BOTTOM MOUNT
AA
B
D
H
G
F
E
I
L
K
J
C
M
O
N
N
O
R
P
Q
I
H
G
F
E
D*
A*
B*
Floor
C*
S
110º
110º




