Operation Manual
Manuals
Brands
Just Fire Manuals
Air Conditioning
Double Duct EC10
1
2
3
4
5
6
7
8
9
10
Table Of Contents
页面 1
页面 2
页面 3
页面 4
页面 5
页面 6
页面 7
页面 8
页面 9
页面 10
页面 11
页面 12
页面 13
页面 14
页面 15
页面 16
页面 17
页面 18
页面 19
页面 20
页面 21
页面 22
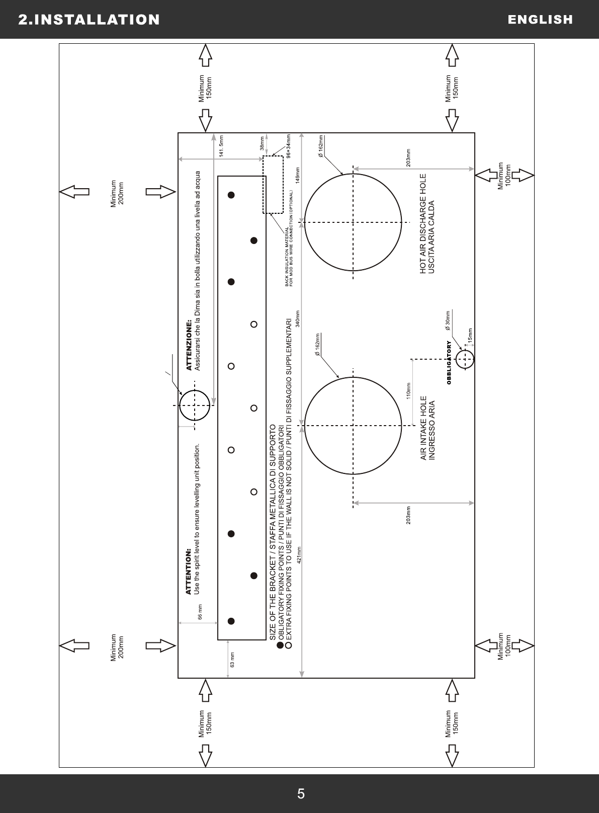
2
6m
m
4
55
mm
F
R
E
S
H
AI
R
H
O
L
E
(
O
P
T
I
ON
A
L
)
5
2m
m
O
1
...
...
5
6
7
8
9
...
...
22