Security Camera User Manual
Table Of Contents
- Cover
- Introduction
- Installation and Connection
- System Example
- About Connection Cables
- The right sequence to connect and set the camera
- Setting the switches
- Mounting the base
- Cable Connection
- Mounting the camera unit
- Adjusting the video image
- Mounting the inner dome
- Mounting the dome cover
- Mounting the camera using the electrical box
- Mounting the camera using the pipe
- White-spot correction
- Others
- Back

16
Installation and Connection
● Turn off the power of devices to be used before connecting the cables.
● Read through the “Instruction Manual” of the devices to be used carefully before connecting.
Memo:
● When mounting the heater (sold separately
part number KA-ZH215), make sure to
connect the power wire to an AC 24 V power
supply only.
● The AC 24 V power supply should conform to
the following:
U-type: Class 2 only
E-type: Isolated power supply only
Note:
● Power consumption of TK-C215VP4 / TK-
C215VP12 are different from one another.
When installing a mixture of these models,
select a cable length according to the power
consumption of each model. Alternatively,
install based on the model with the highest
power consumption.
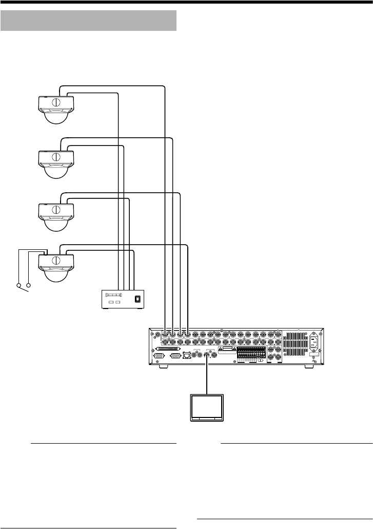
System Example
VIDEO INPUT
COM
EXT REC
OUT
REC
SER
IN
OUT
RST
CLK
OUT
WAR
INCOMRST
OUT
161412108642
15131197531
ALARM
13 169 12
5
81 4/ 16
EE OUT
AC IN
SCSI
RS-232C UPS
21
AUDIO OUT VIDEO OUT
21
LAN
AUDIO IN
VIDEO IN
THRU OUT
1234 5678 910111213141516
SIGNAL GND
CAUTION
RISK OF ELECTRIC SHOCK
DO NOT OPEN
AVIS:RISQUEDECHOC
ELECTRIQ
(220V–240V )
VIDEO OUTPUT
VIDEO INPUT
Monitor
TK-C215VP4U/E
Coaxial Cable
Coaxial Cable
Coaxial Cable
Coaxial Cable
Power Cable
Power Cable
Power Cable
Power Cable
Hard Disk Recorder, etc.
Power Unit DC12 V or
AC24 V (Class 2)
TK-C215VP4U/E
TK-C215VP4U/E
TK-C215VP12U/E
Alarm Signal
(METAL CONTACT)
TK-C215VP4_JP.book Page 16 Thursday, November 2, 2006 10:51 AM










