Portable Generator User Manual

TP-6516 4/0910
12 5420
16
6
3
13 24
17
19
1415
22
ADV-7341A-B
10
25
23
9
21
18
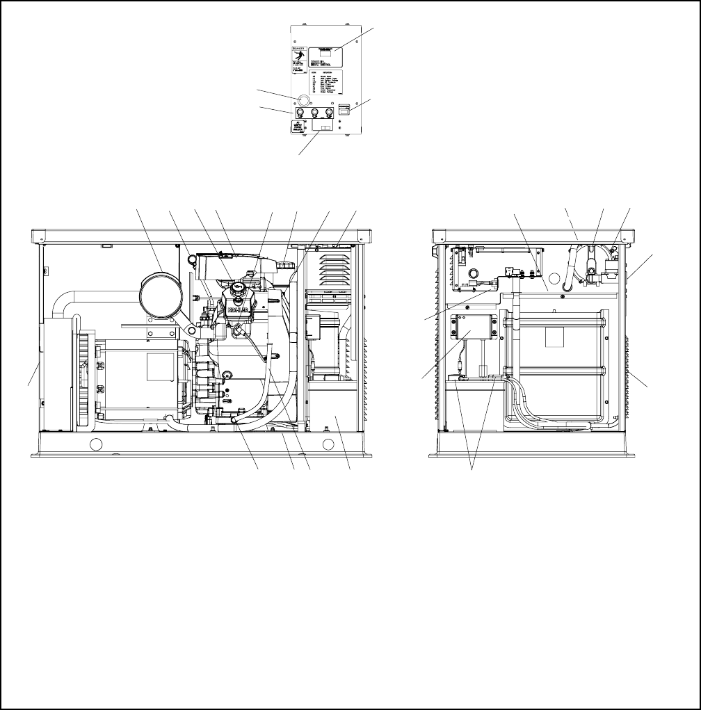
Control detail, top view
8
11
7
12
1. Muffler
2. Oil check
3. Oil fill
4. Air cleaner
5. Spark plug locations (both sides)
6. Oil filter
7. Oil cooler location
8. DC-RET Digital Control display
9. Generator set master switch (RUN-OFF/RESET-AUTO)
10. Line circuit breaker
11. Fuses
12. RS-232 connector (for application program updates)
13. Engine starting battery location (battery purchased separately)
14. Oil drain hose
15. Nameplate location (on base)
16. Oil drain valve
17. Exhaust outlet
18. Field-connection terminal block location
19. LP fuel orifice location (inside hose fitting)
20. Gas regulator assembly
21. DSAI leads
22. Fuel inlet
23. Air intake
24. Battery cables
25. Battery charger
26. 120 VAC receptacle for battery charger
See control detail
26
Figure 2 Generator Set Component Locations, 17/18 kW Models










