Portable Generator User Manual
Manuals
Brands
Kohler Manuals
Portable Generator
12RESM1
11
12
13
14
15
16
17
18
19
20
TP-6516
4/09
16
Section
1
Installat
ion
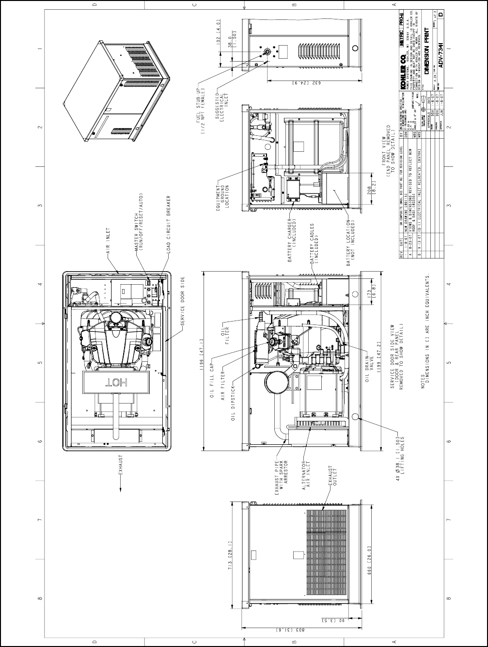
Figure
1-4
Generator
Set
Mounting
Details
and
Dimensions,
17/18
kW
Models,
ADV
-7341-B,
Sheet
1
1
...
...
14
15
16
17
18
...
...
40